Contact Agent
Contact Best Property Services (Newry)
MixedUse
27 Mill Street
Newry, County Down, BT34 1EY
price
£145,000
- Status For Sale
- Property Type MixedUse
-
Stamp Duty
Higher amount applies when purchasing as buy to let or as an additional property£400 / £7,650*
Description
LOCATION
oLocated on Mill Street in Newry City Centre.
oNewry is situated approx. 34 miles from Belfast and 66 miles from Dublin.
oGround floor retail and first floor storage/ office.
oCar parking located in close proximity to the property oOther nearby occupiers include JV Kelly Menswear, Café Krem and Bennets Jewellers.
ACCOMMODATION
Ground Floor - 411 SQFT NIA
Reception
Yard
First Floor - 347 SQFT NIA
Kitchenette
Office 1 and 2
W/C
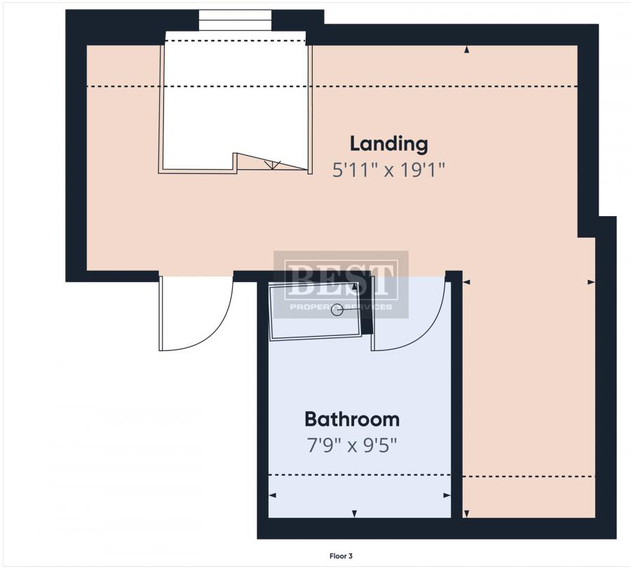
Second Floor - 365 SQFT NIA
Landing
Office 1 and 2
LEASE TERMS
Minimum 3-year lease
GUIDE PRICE
£145,000
GUIDE RENT
£9,600 per annum
VAT
Outgoings rents and prices are exclusive of but may be liable to VAT
NAV
We are verbally advised that the NAV of the property is: £6,600
The commercial rate in the pound for 2024/25 is £0.5805.
EPC
For full details contact the Agent
VIEWING
Gerard Kelly 07796947736 gerard@bestpropertyservices.com
Ryan McBride ryan@bestpropertyservices.com
oLocated on Mill Street in Newry City Centre.
oNewry is situated approx. 34 miles from Belfast and 66 miles from Dublin.
oGround floor retail and first floor storage/ office.
oCar parking located in close proximity to the property oOther nearby occupiers include JV Kelly Menswear, Café Krem and Bennets Jewellers.
ACCOMMODATION
Ground Floor - 411 SQFT NIA
Reception
Yard
First Floor - 347 SQFT NIA
Kitchenette
Office 1 and 2
W/C
Second Floor - 365 SQFT NIA
Landing
Office 1 and 2
LEASE TERMS
Minimum 3-year lease
GUIDE PRICE
£145,000
GUIDE RENT
£9,600 per annum
VAT
Outgoings rents and prices are exclusive of but may be liable to VAT
NAV
We are verbally advised that the NAV of the property is: £6,600
The commercial rate in the pound for 2024/25 is £0.5805.
EPC
For full details contact the Agent
VIEWING
Gerard Kelly 07796947736 gerard@bestpropertyservices.com
Ryan McBride ryan@bestpropertyservices.com
Broadband Speed Availability
Potential Speeds for 27 Mill Street
Max Download
1800
Mbps
Max Upload
220
MbpsThe speeds indicated represent the maximum estimated fixed-line speeds as predicted by Ofcom. Please note that these are estimates, and actual service availability and speeds may differ.
Property Location
Mortgage Calculator
Contact Agent
Contact Best Property Services (Newry)
Request More Information
Requesting Info about...
27 Mill Street, Newry, County Down, BT34 1EY
By registering your interest, you acknowledge our Privacy Policy
By registering your interest, you acknowledge our Privacy Policy