Site
Upper Burren Road
Warrenpoint, Newry, BT34 3PT
asking price
£550,000
- Status For Sale
- Property Type Site
-
Stamp Duty
Higher amount applies when purchasing as buy to let or as an additional property£17,500 / £45,000*
Key Features & Description
Prime residential development site
Full planning permission
Two four bedroom detached homes
Ten four bed semi-detached homes
Lands extend to approximately 1.8 acres
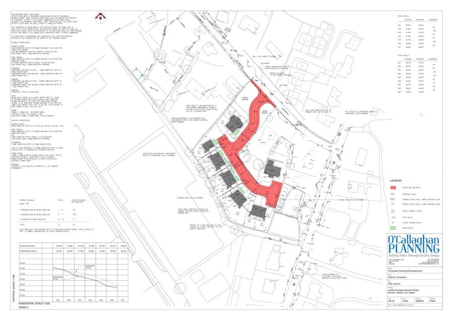
Application Reference: LA07/2019/1748/F
Situated an hour drive from Belfast and an hour drive from Dublin, perfect for commuting
Within walking distance of Burren village
Fantastic schools and amenities close by
Early inspection recommended
Description
HMK Property is delighted to introduce Upper Burren Road to the sales market. This is a rare opportunity to acquire a substantial site in the heart of Burren Village with full planning permission.
Burren Village is a much sought after residential location with excellent local schools and Gaelic Football Club in close proximity to Warrenpoint Town Centre, golf club and shore front. This unique site extends to 1.8 acres with frontage of 35metres onto Upper Burren Road and full planning permission. Interested parties can access the full application on the NI Planning Portal, ref: LA07/2019/1748/F. Permission was granted on the14th September 2022 for 12 residential units consisting of 10 semi-detached properties and 2 further detached dwellings. For more information contact HMK Property on 02890397712.
HMK Property is delighted to introduce Upper Burren Road to the sales market. This is a rare opportunity to acquire a substantial site in the heart of Burren Village with full planning permission.
Burren Village is a much sought after residential location with excellent local schools and Gaelic Football Club in close proximity to Warrenpoint Town Centre, golf club and shore front. This unique site extends to 1.8 acres with frontage of 35metres onto Upper Burren Road and full planning permission. Interested parties can access the full application on the NI Planning Portal, ref: LA07/2019/1748/F. Permission was granted on the14th September 2022 for 12 residential units consisting of 10 semi-detached properties and 2 further detached dwellings. For more information contact HMK Property on 02890397712.
Property Location
Mortgage Calculator
Contact Agent
Contact HMK Property
Request More Information
Requesting Info about...
Upper Burren Road, Warrenpoint, Newry, BT34 3PT
By registering your interest, you acknowledge our Privacy Policy
By registering your interest, you acknowledge our Privacy Policy