Contact Agent
Contact Ulster Property Sales (UPS) Newtownards
Site
2-6 Castle Street / 1-5 Greenwell Street
Newtownards, BT23 7PA
offers around
£700,000
- Status For Sale
- Property Type Site
-
Stamp Duty
Higher amount applies when purchasing as buy to let or as an additional property£25,000 / £60,000*
Key Features & Description
Comprising c. 0.35 acres in a prominent town centre location
Mixed-use development potential (subject to planning)
Retail frontage to Castle Street & Greenwell Street
Strong residential demand in Newtownards
Understood to be located in an area of `social´ housing need.
Description
Newtownards lies approximately 12 miles east of Belfast City Centre, with a town population of around 28,000 and a wider district population of approximately 70,000. Castle Street is a well-trafficked thoroughfare located on the south-east edge of the town centre.
The site circa 0.35 acres, currently comprises a barbershop, car wash, fast food outlet and mechanic´s garage and offers significant potential for residential or commercial redevelopment (subject to planning approval).
This site presents an excellent opportunity for investors and developers seeking to deliver a high-quality residential and commercial scheme in a strong commuter town with proven demand.
Newtownards lies approximately 12 miles east of Belfast City Centre, with a town population of around 28,000 and a wider district population of approximately 70,000. Castle Street is a well-trafficked thoroughfare located on the south-east edge of the town centre.
The site circa 0.35 acres, currently comprises a barbershop, car wash, fast food outlet and mechanic´s garage and offers significant potential for residential or commercial redevelopment (subject to planning approval).
This site presents an excellent opportunity for investors and developers seeking to deliver a high-quality residential and commercial scheme in a strong commuter town with proven demand.
Rooms
Location
Newtownards is a thriving market town situated approximately 12 miles east of Belfast City Centre. With a resident population of c.28,000 and a wider district population of c.70,000, the town serves as a key commercial hub for North Down and Ards.
Castle Street is a busy arterial route on the south-east edge of the town centre, benefitting from high visibility and consistent footfall.
Castle Street is a busy arterial route on the south-east edge of the town centre, benefitting from high visibility and consistent footfall.
The Site
The existing site, outlined in red, currently accommodates a barbershop, car wash, mechanic´s garage, commercial property (trading as a hot food establishment with a rental income of £9000 pa) and apartment.
Development Potential
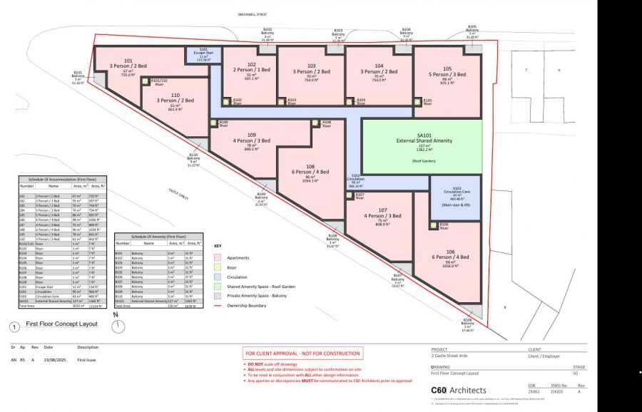
Planning concepts have been prepared for a mixed-use scheme, maximising the potential of this prominent site.
Ground Floor (Commercial Use)
- 3 retail units (ranging from 1519 - 2406 sq ft)
- Car park with dedicated residential and retail service access
- Bicycle storage and bin provision
- Car park with dedicated residential and retail service access
- Bicycle storage and bin provision
Upper Floors (Residential Use)
- 32 high-quality apartments designed for modern living
- Mix of 1, 2, 3 and 4-bed units (2-6 persons)
- Private balconies to selected apartments
- Roof garden and shared external amenity space
- Circulation cores with lift and stair access
- Mix of 1, 2, 3 and 4-bed units (2-6 persons)
- Private balconies to selected apartments
- Roof garden and shared external amenity space
- Circulation cores with lift and stair access
As part of our legal obligations under The Money Laundering, Terrorist Financing and Transfer of Funds (Information on the Payer) Regulations 2017, we are required to verify the identity of both the vendor and purchaser in every property transaction.
To meet these requirements, all estate agents must carry out Customer Due Diligence checks on every party involved in the sale or purchase of a property in the UK.
We outsource these checks to a trusted third-party provider. A charge of £20 + VAT per person will apply to cover this service.
You can find more information about the legislation at www.legislation.gov.uk
To meet these requirements, all estate agents must carry out Customer Due Diligence checks on every party involved in the sale or purchase of a property in the UK.
We outsource these checks to a trusted third-party provider. A charge of £20 + VAT per person will apply to cover this service.
You can find more information about the legislation at www.legislation.gov.uk
Property Location
Mortgage Calculator
Contact Agent
Contact Ulster Property Sales (UPS) Newtownards
Request More Information
Requesting Info about...
2-6 Castle Street / 1-5 Greenwell Street, Newtownards, BT23 7PA
By registering your interest, you acknowledge our Privacy Policy
By registering your interest, you acknowledge our Privacy Policy