Contact Agent

Contact Ulster Property Sales (UPS) Newtownards

Contact Ulster Property Sales (UPS) Newtownards

Site

FPP For 2 Dwellings, 48 North Road

Newtownards, BT23 7AS

offers over £250,000
  • Status For Sale
  • Property Type Site
  • Interior Area 1074 sqft
  • Stamp Duty
    Higher amount applies when purchasing as buy to let or as an additional property
    £2,500 / £15,000*
  • Typical Mortgage
    Click price to use our mortgage calculator

Key Features & Description

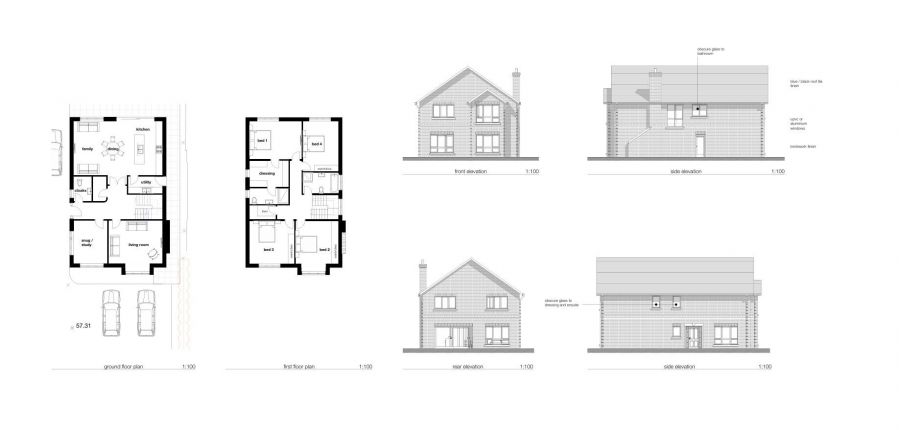
Full Planning Permission For Two Detached Dwellings And Associated Garages
Circa 0.4 Acre Site
Planning Reference: LA06/2022/0273/F
Description
Nestled on North Road in Newtownards, this residential land offers a prime opportunity for those seeking to build their dream home or develop for sale. Boasting full planning permission for two 2-storey detached dwellings with single-storey detached garages to the rear, this approximately 0.4-acre site is a canvas for your architectural aspirations.

Situated in a sought-after location, this property aligns perfectly with the existing building line along North Road, harmonising with the surrounding residential properties. There is currently good development in the area, making it an attractive prospect for those looking to invest in a high-demand market.

With the promise of creating two stunning homes in a well-established neighbourhood, this site presents a rare chance to craft homes that will offer lucrative resale value in the future.

Rooms

Planning Permission Full planning permission was granted on the 15 Mar 2024 with full details available on the planning portal website using reference: LA06/2022/0273/F.
Services It is understood that electric, water and BT are available to the site, although additional costs may be charged by the suppliers to connect to the dwelling as with any building site.
Access The existing vehicular access off North Road is on the south-eastern corner of the site. The site inclines gently away from the public road and is bounded on three sides by residential development. The dwelling which was previously on the site was demolished in 2021.
The proposed sites will be accessed directly off North Road. The existing ground levels adjacent to the road are to be retained with the addition of a new vehicular access in the centre of the roadside boundary. DfI Roads was consulted and it offers no objections to the use of the existing access and also the provision of a second access onto the site.
A total of 2 in-curtilage parking spaces have been provided per unit and there is adequate space for visitor parking also within the site.
Location The site is located on the north-western side of North Road and is currently a vacant brownfield site.
Boundaries The existing boundaries are currently defined by varying fences and walls to the sides and some vegetation to the rear boundaries. The site plan indicates that a new 1.8m high timber fence will be constructed along the south-western boundary and partially along the north-eastern boundary adjacent to the footprint of No. 50. The remaining rear boundaries will continue to the be defined by vegetation.
As part of our legal obligations under The Money Laundering, Terrorist Financing and Transfer of Funds (Information on the Payer) Regulations 2017, we are required to verify the identity of both the vendor and purchaser in every property transaction.

To meet these requirements, all estate agents must carry out Customer Due Diligence checks on every party involved in the sale or purchase of a property in the UK.

We outsource these checks to a trusted third-party provider. A charge of £20 + VAT per person will apply to cover this service.

You can find more information about the legislation at www.legislation.gov.uk

Broadband Speed Availability

Ultrafast

Potential Speeds for 48 North Road

Max Download
1800
Mbps
Max Upload
220
Mbps
The speeds indicated represent the maximum estimated fixed-line speeds as predicted by Ofcom. Please note that these are estimates, and actual service availability and speeds may differ.

Property Location

Show Map

Mortgage Calculator

Disclaimer: The following calculations act as a guide only, and are based on a typical repayment mortgage model. Financial decisions should not be made based on these calculations and accuracy is not guaranteed. Always seek professional advice before making any financial decisions.

Contact Agent

Contact Ulster Property Sales (UPS) Newtownards

Contact Ulster Property Sales (UPS) Newtownards

Request More Information
Requesting Info about...
FPP For 2 Dwellings, 48 North Road, Newtownards, BT23 7AS FPP For 2 Dwellings, 48 North Road, Newtownards, BT23 7AS

By registering your interest, you acknowledge our Privacy Policy