Contact Agent

Contact Ulster Property Sales (UPS) Newtownards

Contact Ulster Property Sales (UPS) Newtownards

Site

Site with FPP, 98 Portaferry Road

Newtownards, BT23 8SN

offers around £265,000
  • Status For Sale
  • Property Type Site
  • EPC Rating E41 / D55 -
  • Stamp Duty
    Higher amount applies when purchasing as buy to let or as an additional property
    £3,250 / £16,500*
  • Typical Mortgage
    Click price to use our mortgage calculator
EPC Rating

Key Features & Description

Excellent Development With Full Planning Permission Circa 0.3 Acre
Uninterrupted Lough Views And Views Towards Scrabo Tower And Newtownards
Close To Newtownards Town Centre And Main Arterial Routes
Decision issued date 02 Aug 2023
Permission expiry date 01 Aug 2028
Description
Discover a unique opportunity to create your dream home in a beautiful setting with stunning seaviews. Located at 98 Portaferry Road, on the southern edge of Newtownards, this attractive site benefits from full planning permission for a single dwelling. Set within the Strangford and Lecale Area of Outstanding Natural Beauty (AONB), the site offers a rare blend of countryside living with convenient road access and panoramic seaview.

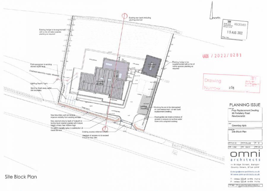
LA06/2022/0281/F
Replacement dwelling, detached garage and associated landscaping.

Rooms

Planning Conditions Development Start: Must commence within 5 years of approval.
Demolition Requirement: Existing building on site must be demolished and cleared prior to new construction.
Landscaping: All planting to meet British Standards and carried out in the first planting season post-occupation.
Hedgerow Protection: All existing hedgerows are to be retained and maintained to support biodiversity and visual amenity.
Glazing Requirements: Privacy-preserving obscure glazing specified for key windows.
Access Construction: Vehicular access and visibility splays to be completed before building begins.
Environmental Buffer: Minimum 10m buffer from Strangford Lough boundaries to protect sensitive environmental features.
Site Details Current Occupation: The site is presently occupied by the left-hand property of a pair of one and a half storey semi-detached dwellings.
Access: Direct vehicular access from Portaferry Road.
Planning Approval: Full planning permission granted under application LA06/2022/0281, with comprehensive site plans and landscaping proposals.
Location Situated along Portaferry Road, just outside the defined settlement limit of Newtownards.
Close proximity to Finlay´s Road junction, providing easy access to surrounding towns and villages.
Nestled in open countryside, among an appealing mix of homes of various sizes and styles.
Within the designated Strangford Lough ASSI, SAC & SPA, ensuring a protected and scenic environment.
As part of our legal obligations under The Money Laundering, Terrorist Financing and Transfer of Funds (Information on the Payer) Regulations 2017, we are required to verify the identity of both the vendor and purchaser in every property transaction.

To meet these requirements, all estate agents must carry out Customer Due Diligence checks on every party involved in the sale or purchase of a property in the UK.

We outsource these checks to a trusted third-party provider. A charge of £20 + VAT per person will apply to cover this service.

You can find more information about the legislation at www.legislation.gov.uk

Broadband Speed Availability

Ultrafast

Potential Speeds for 98 Portaferry Road

Max Download
1000
Mbps
Max Upload
1000
Mbps
The speeds indicated represent the maximum estimated fixed-line speeds as predicted by Ofcom. Please note that these are estimates, and actual service availability and speeds may differ.

Property Location

Show Map

Mortgage Calculator

Disclaimer: The following calculations act as a guide only, and are based on a typical repayment mortgage model. Financial decisions should not be made based on these calculations and accuracy is not guaranteed. Always seek professional advice before making any financial decisions.

Contact Agent

Contact Ulster Property Sales (UPS) Newtownards

Contact Ulster Property Sales (UPS) Newtownards

Request More Information
Requesting Info about...
Site with FPP, 98 Portaferry Road, Newtownards, BT23 8SN Site with FPP, 98 Portaferry Road, Newtownards, BT23 8SN

By registering your interest, you acknowledge our Privacy Policy