4 Bed Detached House
Tudor Lodge, 111 Belfast Road
Bradshaws Brae, Newtownards, BT23 4TS
price
£670,000
Key Features & Description
Description
An imposing, mock Tudor, detached residence constructed in the 1960's. 'Tudor Lodge' represents a superb opportunity to acquire a beautiful period home enjoying a prime location along the popular Belfast Road, a leafy suburb on the periphery of Newtownards known locally as 'Bradshaw's Brae'. The address has long been associated with holding some of the most established and prestigious homes in the area. The subject property is neatly accessed via a privately owned tarmac laneway, shared with three other properties, and follows into an extensive tarmac driveway.
Resting on a secluded, elevated site, of around 1 acre, providing formal gardens set out in large manicured lawn areas, a collection of mature trees, hedging, well stocked borders, shrub beds, and further offers fantastic parking facilities with turning circle.
This attractive home has luckily retained a host of original features and offers an abundance of character throughout, which can only be appreciated upon viewing internally. In need of some light modernisation, 'Tudor Lodge' would be the perfect property for a growing family seeking a home to put down roots in this established, convenient location.
Commuting to Belfast is very palatable and with that accessibility to leading schooling options within the greater Belfast catchment area. Locally, Regent House Preparatory & Grammar School is less than 2 miles away. Shopping is close to hand also, with the busy Newtownards town centre only a few minutes' drive away, Holywood and Bangor towns can also be reached within a 10 min drive. Stormont Buildings, City Airport and the Ulster Hospital are also easily accessible from this beautiful property.
Property of this particular nature rarely become available on the open market, to avoid disappointment please contact our Newtownards branch on 02891 800700, to arrange your private viewing appraisal.
An imposing, mock Tudor, detached residence constructed in the 1960's. 'Tudor Lodge' represents a superb opportunity to acquire a beautiful period home enjoying a prime location along the popular Belfast Road, a leafy suburb on the periphery of Newtownards known locally as 'Bradshaw's Brae'. The address has long been associated with holding some of the most established and prestigious homes in the area. The subject property is neatly accessed via a privately owned tarmac laneway, shared with three other properties, and follows into an extensive tarmac driveway.
Resting on a secluded, elevated site, of around 1 acre, providing formal gardens set out in large manicured lawn areas, a collection of mature trees, hedging, well stocked borders, shrub beds, and further offers fantastic parking facilities with turning circle.
This attractive home has luckily retained a host of original features and offers an abundance of character throughout, which can only be appreciated upon viewing internally. In need of some light modernisation, 'Tudor Lodge' would be the perfect property for a growing family seeking a home to put down roots in this established, convenient location.
Commuting to Belfast is very palatable and with that accessibility to leading schooling options within the greater Belfast catchment area. Locally, Regent House Preparatory & Grammar School is less than 2 miles away. Shopping is close to hand also, with the busy Newtownards town centre only a few minutes' drive away, Holywood and Bangor towns can also be reached within a 10 min drive. Stormont Buildings, City Airport and the Ulster Hospital are also easily accessible from this beautiful property.
Property of this particular nature rarely become available on the open market, to avoid disappointment please contact our Newtownards branch on 02891 800700, to arrange your private viewing appraisal.
Rooms
Enclosed Entrance Porch
Quarry tiled floor, wall light points, glazed door to Entrance Hall.
Entrance Hall
Mock stone fireplace, wall panelling, wall light points, telephone point, corniced ceiling, feature leaded glass windows.
Lounge 24'5" X 12'10" (7.44m X 3.90m)
Attractive 'Adam' style fireplace surround, marble inset and hearth, open fire, polished oak floor, wall light points, corniced ceiling, dual aspect, view to Scrabo Tower.
Drawing Room 23'11" X 12'11" (7.30m X 3.94m)
Feature fireplace with multi fuel stove, slate hearth, wall light points, dual aspect, corniced ceiling, recessed spotlighting.
Snug 16'0" X 8'10" (4.88m X 2.70m)
Feature stone fireplace with timber surround, quarry tiled hearth, open fire, corniced ceiling.
Walk in Cloakroom Cupboard 7'5" X 3'5" (2.26m X 1.04m)
Deluxe Kitchen with Casual Dining 22'0" X 9'10" (6.70m X 3.00m)
(Widening to 11'5") Twin tub stainless steel sink unit with mixer taps, range of high and low level oak units, 2 ring gas hob unit and 2 ring ceramic hob unit, double guilt in oven, extractor hood, plumbed for dishwasher, display cabinet, wall tiling, concealed lighting, large roof light, 2 separate larders, glazed door to Conservatory.
UPVC Double Glazed Lean to Conservatory 11'8" X 8'2" (3.56m X 2.50m)
Ceramic tiled floor, uPVC double glazed rear door.
Utility Room 11'5" X 4'10" (3.48m X 1.47m)
Plumbed for washing machine, vented for tumble dryer. Door to Garage.
Seperate WC
White suite.
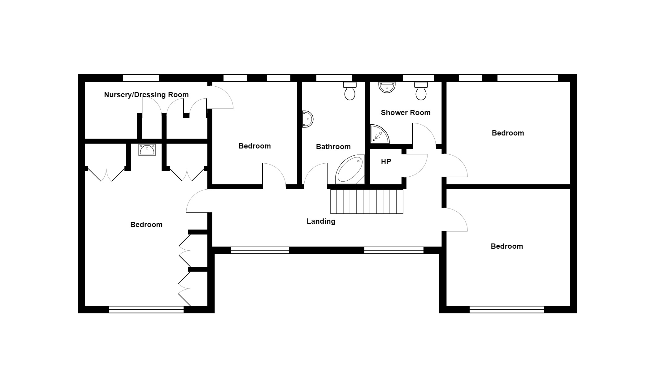
Landing
Large open Landing with far reaching views to Scrabo Tower and Strangford Lough. Wall panelling, wall light points, access to roofspace, concealed Hotpress with copper cylinder and immersion heater.
Principal Bedroom 16'0" X 12'11" (4.88m X 3.94m)
At widest points. Range of built in robes, corniced ceiling, far reaching views to Scrabo Tower and Strangford Lough, wash hand basin.
Bedroom 2 12'10" X 12'1" (3.90m X 3.68m)
Corniced ceiling, far reaching views to Scrabo Tower and countryside.
Deluxe Shower Room
Cream suite comprising: Separate fully tiled shower cubicle with 'Mira' thermostatically controlled shower, pedestal wash hand basin, low flush WC, wall tiling, chrome radiator, shaver point, LED recessed spotlighting.
Bedroom 3 12'10" X 10'11" (3.90m X 3.33m)
Corniced ceiling, wash hand basin.
Bedroom 4 13'0" X 9'10" (3.96m X 3.00m)
Corniced ceiling. Door leading to:
Nursery/Dressing Room 13'0" X 7'0" (3.96m X 2.13m)
Range of built in robes. Corniced ceiling.
Deluxe Bathroom
White suite comprising: Panelled corner bath with mixer taps and telephone hand shower over, pedestal wash hand basin, low flush WC, fully tiled walls, ceramic tiled floor, large towel radiator, corniced ceiling, recessed spotlighting.
Garage 21'10" X 15'10" (6.65m X 4.83m)
Remote control black roller door, light and power, staircase to First Floor. Approached via extensive tarmac and paved driveway with turning circle and plenty of parking.
Tool Room 9'7" X 4'10" (2.92m X 1.47m)
Office 22'5" X 14'6" (6.83m X 4.42m)
At widest points. Light and power.
Coal House 9'9" X 7'10" (2.97m X 2.40m)
Large coal bunker. Door to Boiler House.
Boiler House 8'8" X 7'2" (2.64m X 2.18m)
Oil fired boiler, diesel generator, light and power.
Games Room 23'7" X 23'6" (7.20m X 7.16m)
Light and power, 3 large windows.
EXTERIOR
Exterior:
Total of circa 1 acre of private gardens laid out in extensive lawns, mature trees, hedging, shrub beds, individual mature shrubs, large green house, outside tap, outside lights, outside water tap, paved patio, concrete paths. Gentleman's Gate at front boundary to Belfast Road for pedestrians. The lane leading to the property is privately owned and maintained by the four properties.
Total of circa 1 acre of private gardens laid out in extensive lawns, mature trees, hedging, shrub beds, individual mature shrubs, large green house, outside tap, outside lights, outside water tap, paved patio, concrete paths. Gentleman's Gate at front boundary to Belfast Road for pedestrians. The lane leading to the property is privately owned and maintained by the four properties.
Video
Broadband Speed Availability
Potential Speeds for 111 Belfast Road
Max Download
10000
Mbps
Max Upload
10000
MbpsThe speeds indicated represent the maximum estimated fixed-line speeds as predicted by Ofcom. Please note that these are estimates, and actual service availability and speeds may differ.
Property Location
Mortgage Calculator
Contact Agent
Contact Simon Brien (Newtownards)
Request More Information
Requesting Info about...
Tudor Lodge, 111 Belfast Road, Bradshaws Brae, Newtownards, BT23 4TS
By registering your interest, you acknowledge our Privacy Policy
By registering your interest, you acknowledge our Privacy Policy