Contact Agent

Contact John Minnis Estate Agents (Donaghadee)

Contact John Minnis Estate Agents (Donaghadee)

5 Bed Detached House

48 Mountstewart Road

Newtownards, BT22 2AX

offers around £749,950
  • Status For Sale
  • Property Type Detached
  • Bedrooms 5
  • Receptions 3
  • Interior Area 3003 sqft
  • Heating Oil
  • EPC Rating F37 / D57 -
  • Stamp Duty
    Higher amount applies when purchasing as buy to let or as an additional property
    £27,498 / £64,995*
  • Typical Mortgage
    Click price to use our mortgage calculator
EPC Rating

Key Features & Description

Outstanding Detached Family Home Occupying Idyllic Semi Rural Site of Around an Acre
Originally Was Two Cottages Which Have Been Combined to Provide Bright, Spacious and Flexible Accommodation
One of the Finest Examples of How to Extensively Renovated and Extend a Property Sympathetically
Retains a Lot of Character Associated with Properties of this Era Highlighted by Features Such As Solid Oak Floor, Cast Iron Stoves, Feature Cast Iron Radiators and Exposed Stone Wall
Magnificent Large Open Plan Family Room with Casual Dining Area, Solid Oak Wooden Floor, Tongue and Groove Ceiling, Cast Iron Wood Burning Stove, Feature Exposed Stone Walls
Drawing Room with Solid Oak Wooden Floor
Living Room with Feature Vaulted Ceiling, Cast Iron Wood Burning Stove and Wooden Sleeper Mantel
Superb Fitted Kitchen with Range of Bespoke Solid Wood Hand Painted Units, Granite Work Surfaces, Integrated Appliances and Granite Display Shelves
Separate Utility Room
Up to Five Bedrooms Including Main Bedroom with Built-in Wardrobe, Aspect to Mature Rear Garden, En Suite Shower Room and Dressing Area
Ground Floor Guest Bedroom with En Suite Shower Room
Fifth Bedroom Would be Ideal as that All Important Home Office
First Floor Bathroom with Four Piece Suite to Include Free Standing Cast Iron Bath and Separate Shower Cubicle
Additional Downstairs WC
Spacious Landing Which Can be Accessed via Two Staircases Adding to the Charm and Character
Oil Fired Central Heating
Partially Double Glazed
Beautifully Presented Mature Gardens Surrounding the Property Which Have Lawns, Array of Colourful Flowers, Plants, Trees and Shrubs, Paved Pathways and Various Areas to Sit and Take in the Beautiful
Rear Garden is Particularly Impressive
Driveway and Parking Area with Space for Cars, Caravans, Boats, Horse Boxes, etc
Detached Double Garage Currently Partitioned to Provide Garden Store to the Rear
Studio Above Garage with Potential for Gym, Office, Games Room, Bar, etc, Subject to Necessary Approvals, Studio Has Extensive Timber Decked Terrace Making an Ideal Space for Outdoor Entertaining
Property is Excellent for Entertaining Both Internally and Externally
Conveniently Positioned with Easy Access to Newtownards, Bangor, Donaghadee and Greyabbey and just 15 Miles to Belfast City Airport
Various Tourist Attractions Close by Which Include Mount Stewart Gardens, Scrabo Tower, Killynether Forest Park and Portaferry Aquarium
Ideal for Outdoor Entertaining, Enjoying the Sun or Children at Play
Description
48 Mountstewart Road is undoubtedly one of the finest examples of how to sympathetically but extensively renovate and extend a property in such a way that you are able to retain the character associated with properties of this era. The previous owner combined adjoining cottages to create this detached property which was then significantly renovated & extended by the current owner of 30 plus years, increasing the size and scale. Using sympathetic design and meticulous attention to detail this overhaul was transformative while maintaining integrity of the original cottage. The extended slate roof and stone facade is indistinguishable from the 19th Century structure with the interior treatment equally as impressive and seamless.
This has created a deceptively spacious family home with versatile and flexible accommodation providing a range of different layouts to suit the needs of the owners, the property possesses that all important feeling of warmth and character highlighted by features such as solid oak wooden floor, cast iron stoves, cast iron radiators and exposed stone walls.
Upon entering the property you will instantly notice the immaculate finish. On the ground floor you have a spacious drawing room with solid oak wooden floor, living room with feature vaulted ceiling, cast iron wood burning stove and wooden sleeper mantel, guest bedroom with en suite shower room, superb kitchen with range of bespoke solid wood hand painted units, granite work surfaces, range of integrated appliances and granite display shelves. Off the kitchen you will find undoubtedly the room of the house which is a magnificent large open plan family room with casual dining area, solid oak floor, tongue and groove ceiling, cast iron wood burning stove, exposed stone walls and two sets of double glazed French doors to outside. Upstairs, which is accessed by two staircases, this fine property is further enhanced by having four additional bedrooms including main bedroom with built-in wardrobe, aspect to mature rear garden and en suite shower room with dressing area. One of the bedrooms could be that all important home office. You also have a bathroom with four piece suite which includes free standing cast iron bath and separate shower cubicle. Other benefits include oil fired central heating, partially double glazed windows, downstairs WC and utility room.
Outside does not disappoint either. The property sits on an idyllic mature semi rural site of around an acre with beautifully presented mature gardens surrounding the property but particularly to the rear with its array of colourful flowers, plants, trees and shrubs with the stunning County Down scenery as the wider landscape from nearby Strangford Lough to the Mourne Mountains. It also has various areas to sit and take in the beautiful scenery. You also have a detached double garage which is currently partitioned to provide a garden store to the rear. Above this you have a studio which could be used as a gym, office, games room, bar, etc, subject to necessary approvals. It has an extensive outside timber decked terrace making this a property which is excellent for entertaining both internally and externally. A driveway and parking area provides ample space for cars, caravans, boats, horse boxes, etc.
The property is adjacent to and originally part of the Mount Stewart Estate with it's fascinating history and world famous gardens, now operated by the National Trust. Conveniently positioned with easy access into Newtownards" thriving town centre as well as other coastal towns such as Bangor, Donaghadee and Greyabbey and just 15 miles to Belfast City Airport. There are also a variety of tourist attractions close by such as, Scrabo Tower, Killynether Forest Park and Portaferry Aquarium. A viewing is thoroughly recommended at your earliest opportunity so as to appreciate it in its entirety.

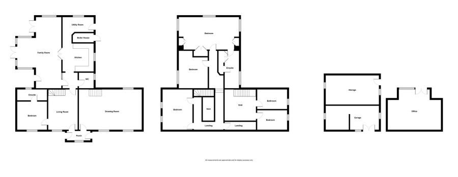
Rooms

Two front doors to entrance porch.
ENTRANCE PORCH: Fully tiled floor.
DRAWING ROOM: 25' 1" X 15' 11" (7.65m X 4.85m) at widest points Solid oak wooden floor.
LIVING ROOM: 13' 6" X 12' 4" (4.11m X 3.76m) at widest points Feature vaulted ceiling, cast iron wood burning stove, brick surround, wooden sleeper mantel, slate hearth, feature cast iron radiator.
BEDROOM (4): 12' 0" X 10' 0" (3.66m X 3.05m) at widest points Fully tiled floor.
ENSUITE SHOWER ROOM: Three piece suite comprising shower cubicle, wash hand basin with mixer tap, storage beneath, low flush WC, heated towel rail, fully tiled floor, extractor fan.
INNER HALLWAY: Solid wood strip flooring.
DOWNSTAIRS WC: Two piece white suite comprising low flush WC, pedestal wash hand basin, wood strip flooring, part tongue and groove walls, tongue and groove ceiling, extractor fan.
SUPERB KITCHEN 13' 1" X 9' 11" (3.99m X 3.02m) Range of high and low level bespoke solid wood hand painted units, granite work surfaces, sink unit with mixer tap, matching granite drainer, integrated six ring gas hob with granite splashback, extractor fan above, integrated Smeg microwave combi oven, plumbed for dishwasher, concealed bin storage area, solid wood strip flooring, concealed strip lighting, granite display shelves, part tiled walls, tongue and groove ceiling, feature cast iron radiator.
LARGE OPEN PLAN FAMILY ROOM WITH CASUAL DINING AREA: 29' 0" X 18' 0" (8.84m X 5.49m) at widest points Solid oak wooden floor, tongue and groove ceiling, cast iron wood burning stove, feature exposed stone walls, feature cast iron radiator, two sets of double glazed French doors to outside, additional stable door to outside, beamed ceilings.
UTILITY ROOM: 14' 4" X 6' 5" (4.37m X 1.96m) Bespoke range of high and low level solid wood hand painted units, solid wooden work surfaces, one and a half bowl single drainer sink unit with mixer tap, space for fridge freezer, integrated wine rack, solid wood strip flooring, extractor fan, door to outside, plumbing for washing machine, space for tumble dryer.
SPACIOUS FIRST FLOOR LANDING: Staircase from living room and drawing room, part painted floorboards, tongue and groove ceiling.
BEDROOM (1): 24' 4" X 13' 1" (7.42m X 3.99m) into eaves at widest points Built-in wardrobe, storage in eaves, feature cast iron radiators, aspect to mature rear garden.
ENSUITE SHOWER ROOM AND DRESSING ROOM: Four piece suite comprising built-in fully tiled shower cubicle, twin wash hand basins with mixer tap, low flush WC, built-in wardrobes, chest of drawers, dressing table, part tiled walls, fully tiled floor.
BEDROOM (2): 12' 7" X 10' 4" (3.84m X 3.15m) Iinto eaves at widest points
BEDROOM (3): 16' 0" X 11' 0" (4.88m X 3.35m) at widest points Painted wooden floorboards, was originally two bedrooms and could be easily sub-divided back.
BEDROOM FIVE OR HOME OFFICE 11' 5" X 7' 8" (3.48m X 2.34m) at widest points Painted wooden floorboards.
BATHROOM: Four piece suite comprising free standing claw foot roll top cast iron bath, mixer tap, telephone hand shower, separate built-in fully tiled shower cubicle, low flush WC, pedestal wash hand basin, part tiled walls, painted floorboards
Idyllic mature semi rural site of around an acre, driveway in attractive brick paviour leading to additional parking area in loose stones providing space for cars, caravans, boats, horse box, etc, detached double garage currently partitioned, outstanding mature rear garden in lawns with colourful array of plants, trees and shrubs, timber decked terrace, various areas to sit and take in the beautiful scenery.
STUDIO/GYM/OFFICE/GAMES ROOM, ETC: 21' 4" X 17' 1" (6.50m X 5.21m) at widest points With extensive outside timber decked terrace, could be ideal as gym, games room, bar, etc, subject to necessary approvals, double glazed French doors to access, laminate wood effect floor, power, light, wired for TV, heat (?). Timber decked terrace off the studio is an ideal barbecue area.
Pathways in loose stones and mature gardens surround the property with array of colourful plants, trees and shrubs.
DETACHED DOUBLE GARAGE: 23' 0" X 21' 3" (7.01m X 6.48m) at widest points Currently partitioned to provide a garden store to the rear.
This site is a perfect site for outdoor entertaining, enjoying the sun or children at play.

Video

Broadband Speed Availability

Ultrafast

Potential Speeds for 48 Mountstewart Road

Max Download
1800
Mbps
Max Upload
1000
Mbps
The speeds indicated represent the maximum estimated fixed-line speeds as predicted by Ofcom. Please note that these are estimates, and actual service availability and speeds may differ.

Property Location

Show Map

Mortgage Calculator

Disclaimer: The following calculations act as a guide only, and are based on a typical repayment mortgage model. Financial decisions should not be made based on these calculations and accuracy is not guaranteed. Always seek professional advice before making any financial decisions.

Directions

From Newtownards Travel for approx 3.6 Miles on the Portaferry Road, , turn left onto Mountstewart Road, No 48 will be on your left after approx 1 Mile.

Contact Agent

Contact John Minnis Estate Agents (Donaghadee)

Contact John Minnis Estate Agents (Donaghadee)

Request More Information
Requesting Info about...
48 Mountstewart Road, Newtownards, BT22 2AX 48 Mountstewart Road, Newtownards, BT22 2AX

By registering your interest, you acknowledge our Privacy Policy