Contact Agent

Contact iamsold NI

Contact iamsold NI

Land

Fpp For 4 Bed Det House Derrylea Road

Newtownbutler, BT92 8DG

guide price £85,000
  • Status For Sale
  • Property Type Land
  • Stamp Duty
    Higher amount applies when purchasing as buy to let or as an additional property
    £0 / £4,250*
  • Typical Mortgage
    Click price to use our mortgage calculator

Description

For sale by Watters Property Sales via the iamsold Bidding Platform

Please note this property will be offered by online auction (unless sold prior). For auction date and time please visit iamsoldni.com. Vendors may decide to accept pre-auction bids so please register your interest with us to avoid disappointment.

This is a fantastic opportunity to acquire a stunning site nestled in picturesque countryside with breathtaking views over Cargin Lough.

The site comes with full planning permission for a detached home and garage.

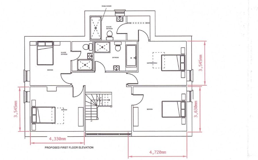
Approved plans include a spacious four-bedroom house with four bathrooms, an open-plan kitchen/dining area, a utility room, and two reception rooms on the ground floor. With potential to utilise one of the reception rooms into a downstairs bedroom or guest room.

Planning documents are attached. All necessary services are conveniently located nearby.

The site covers approximately 0.3 acres and is located just over four miles from Lisnaskea, which offers a range of amenities, including schools, shops, and public transport links. Newtownbutler is also just over four miles away.

Additional Information
Site with full planning permission for a detached house & garage.
Stunning countryside location with Lough views.
Conveniently located close to local Towns Lisnaskea & Newtownbutler.
Planning information attached - planning passed for a four/five bedroom home.
Services within close proximity.
Foundations are in, site is ready to develop.
Lisnaskea four miles drive.
Newtownbutler four miles drive.
Private laneway.

TO VIEW OR MAKE A BID Contact Watters Property Sales or iamsold, www.iamsoldni.com

Property Location

Show Map

Mortgage Calculator

Disclaimer: The following calculations act as a guide only, and are based on a typical repayment mortgage model. Financial decisions should not be made based on these calculations and accuracy is not guaranteed. Always seek professional advice before making any financial decisions.

Contact Agent

Contact iamsold NI

Contact iamsold NI

Request More Information
Requesting Info about...
Fpp For 4 Bed Det House Derrylea Road, Newtownbutler, BT92 8DG Fpp For 4 Bed Det House Derrylea Road, Newtownbutler, BT92 8DG

By registering your interest, you acknowledge our Privacy Policy