Contact Agent

Contact Watters Property Sales

Contact Watters Property Sales

5 Bed Detached House

9 Corbally Road

Omagh, BT78 3HW

offers in region of £99,000
  • Status For Sale
  • Property Type Detached
  • Bedrooms 5
  • Receptions 2
  • Bathrooms 5
  • Heating Not Specified
  • Stamp Duty
    Higher amount applies when purchasing as buy to let or as an additional property
    £0 / £4,950*
  • Typical Mortgage
    Click price to use our mortgage calculator

Key Features & Description

Partially constructedFive bedroomsDetached family homePeaceful and relaxed settingCirca 1.1 acre siteServices all closeCountryside location
Description

A dream home in the country waiting for you!


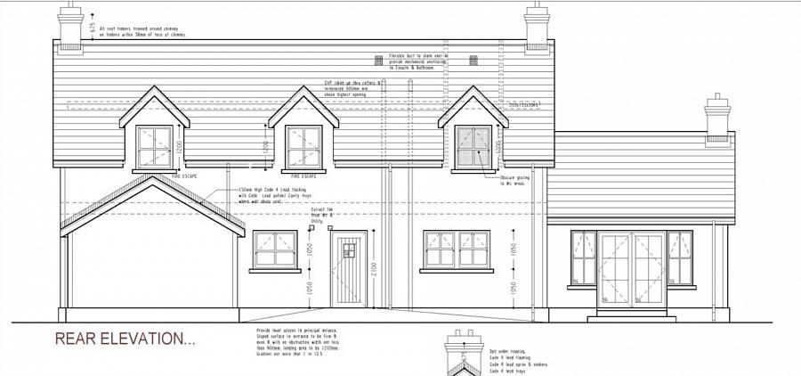
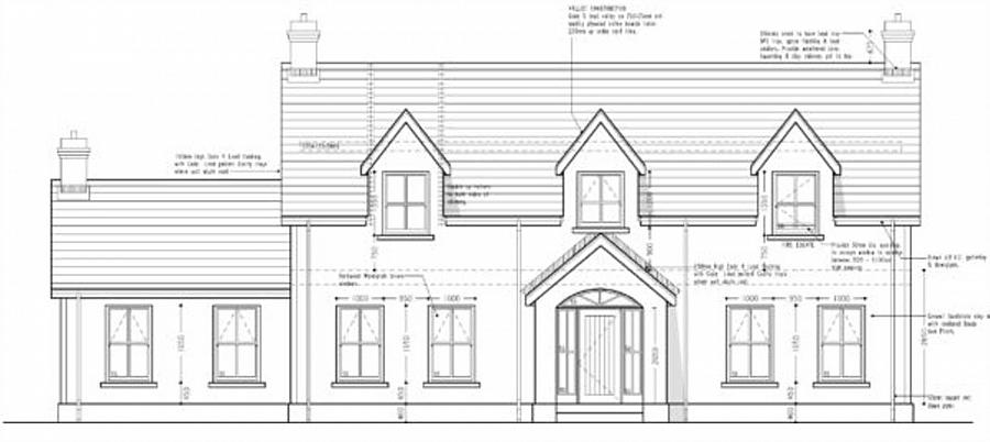
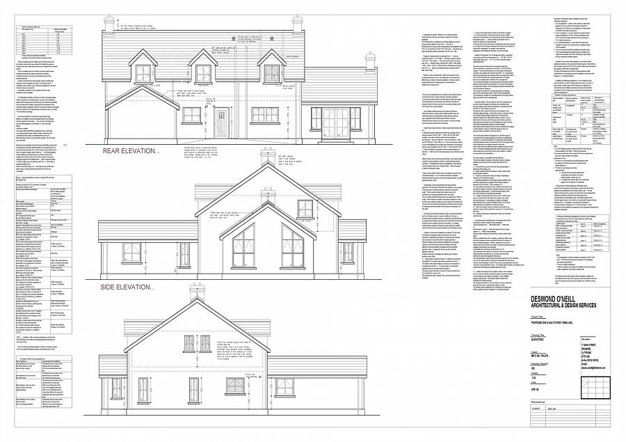
For sale is this partially constructed detached five bedroom family home surrounded by rural beauty set on circa 1.2 acres on the Corbally road Fintona.


This property when completed will have many desirable features with the potential for five bedrooms, the ground floor will comprise of an open plan kitchen/dining area, family living room, family bathroom and sun room. The first floor is yet to be constructed offering the new buyer an opportunity to make some changes if they wish, subject to approval.


The exterior of the property has extensive space and is it is set off the main road and completely private. There is also planning for a detached garage.


We are advised that all services are close by (electric, water & phone).


Get in touch for further information and to book a viewing on site.


Tel: 028 66 022200


Email: info@watterspopertysales.co.uk


For the exact location copy the link below!


https://what3words.com/race.dame.enjoys



Notice
Please note we have not tested any apparatus, fixtures, fittings, or services. Interested parties must undertake their own investigation into the working order of these items. All measurements are approximate and photographs provided for guidance only.

Utilities
Electric: Unknown
Gas: Unknown
Water: Unknown
Sewerage: Unknown
Broadband: Unknown
Telephone: Unknown

Other Items
Heating: Not Specified
Garden/Outside Space: No
Parking: No
Garage: No

Property Location

Show Map

Mortgage Calculator

Disclaimer: The following calculations act as a guide only, and are based on a typical repayment mortgage model. Financial decisions should not be made based on these calculations and accuracy is not guaranteed. Always seek professional advice before making any financial decisions.

Contact Agent

Contact Watters Property Sales

Contact Watters Property Sales

Request More Information
Requesting Info about...
9 Corbally Road, Omagh, BT78 3HW 9 Corbally Road, Omagh, BT78 3HW

By registering your interest, you acknowledge our Privacy Policy