Retail
9 - 11 Main Street, Omagh, Tyrone
Omagh, BT78 1BA
Price on Application
- Status For Rent
- Property Type Retail
Description
Prime Town Centre Retail Opportunity
This fantastic corner unit boasts a highly visible presence on one of Omagh's busiest streets, surrounded by a lively mix of bars, restaurants, and popular high-street names like The Perfume Shop, Subway, Holland & Barrett, O2 and The Goldmine Jewellers.
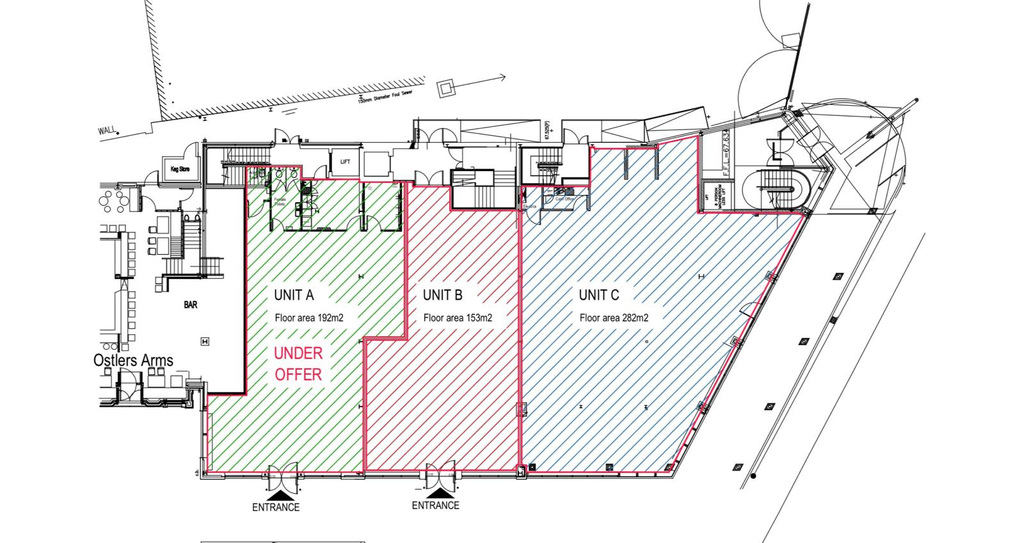
The space offers ultimate flexibility - whether you're looking for a single large unit or something a little smaller. The property can be leased as one large space or subdivided into smaller units to suit your exact needs, ranging from approximately 1,647 to 6,749 Sq Ft.
Having been previously occupied by Poundland, the premises is in great shape and ready for its new tenant, with only minimal capital outlay required.
Key highlights include:
Pitched right in Omagh town centre
Surrounded by local and national retailers
Flexible layout for various sizes & uses
Large glazed frontages perfect for showcasing products
High ceilings adding to the unit's appeal
Rear service access for hassle-free deliveries
Abundance of nearby customer & staff parking
Ideally suited for retail, showrooms, grocery outlets or similar uses, subject to planning permission.
Quoting rent is available upon request.
Download our Property Brochure for full details.
This fantastic corner unit boasts a highly visible presence on one of Omagh's busiest streets, surrounded by a lively mix of bars, restaurants, and popular high-street names like The Perfume Shop, Subway, Holland & Barrett, O2 and The Goldmine Jewellers.
The space offers ultimate flexibility - whether you're looking for a single large unit or something a little smaller. The property can be leased as one large space or subdivided into smaller units to suit your exact needs, ranging from approximately 1,647 to 6,749 Sq Ft.
Having been previously occupied by Poundland, the premises is in great shape and ready for its new tenant, with only minimal capital outlay required.
Key highlights include:
Pitched right in Omagh town centre
Surrounded by local and national retailers
Flexible layout for various sizes & uses
Large glazed frontages perfect for showcasing products
High ceilings adding to the unit's appeal
Rear service access for hassle-free deliveries
Abundance of nearby customer & staff parking
Ideally suited for retail, showrooms, grocery outlets or similar uses, subject to planning permission.
Quoting rent is available upon request.
Download our Property Brochure for full details.
Broadband Speed Availability
Potential Speeds for 9 - 11 Main Street, Omagh, Tyrone
Max Download
1800
Mbps
Max Upload
1000
MbpsThe speeds indicated represent the maximum estimated fixed-line speeds as predicted by Ofcom. Please note that these are estimates, and actual service availability and speeds may differ.
Property Location
Contact Agent
Contact Mellon Properties
Request More Information
Requesting Info about...
9 - 11 Main Street, Omagh, Tyrone, Omagh, BT78 1BA
By registering your interest, you acknowledge our Privacy Policy
By registering your interest, you acknowledge our Privacy Policy