Contact Agent

Contact CPS Omagh

Contact CPS Omagh

Site

42 Magherabrack Road, Gortin

Omagh, BT79 8NS

Price on Application
  • Status For Sale
  • Property Type Site

Description

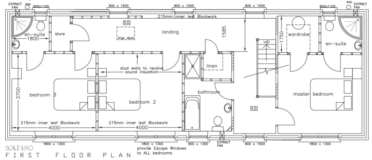
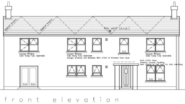
CPS are pleased to welcome to the open market this excellent elevated countryside site which offers stunning panoramic views. Work has commenced on the site with full planning permission granted for a two storey dwelling. For more information, please contact CPS Omagh.

 

- Full Planning Permission Granted For A Two Storey Dwelling
- Foundations In Place
- Electric On Site
- Excellent Secluded Countryside Site
- Located Approx. 5mile From Gortin Village

 

Directions

From Gortin travel out the Crocakanboy Road approx. 3 mile, once you cross the bridge take next road on your left Drumlea Road. Continue to the end of the Drumlea Road where you will then go straight through the crossroads onto the Maghreabrack Road, travel along the Magherabrack road for approx. 1.5 mile site lane is located on your left hand side.

 

Video

Property Location

Show Map

Contact Agent

Contact CPS Omagh

Contact CPS Omagh

Request More Information
Requesting Info about...
42 Magherabrack Road, Gortin, Omagh, BT79 8NS 42 Magherabrack Road, Gortin, Omagh, BT79 8NS

By registering your interest, you acknowledge our Privacy Policy