Contact Agent

Contact CPS Omagh

Contact CPS Omagh

3 Bed Site

Ne Of 43 Rakeeran Road, Dromore

Omagh, BT78 3HN

Price on Application
  • Status For Sale
  • Property Type Site
  • Bedrooms 3
  • Receptions 2

Description

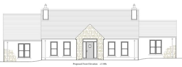
CPS welcome to the market an excellent opportunity to acquire a building site with full planning permission for a detached bungalow and garage located on the Rakeeran Road, Dromore, Co Tyrone. Situated Approx. 1 mile of the Dromore / Fintona Road this site extends too circa. 0.5 Acres.

For more information please contact CPS Omagh on 0288 2252820.

 

Broadband Speed Availability

Ultrafast

Potential Speeds for Ne Of 43 Rakeeran Road, Dromore

Max Download
1000
Mbps
Max Upload
1000
Mbps
The speeds indicated represent the maximum estimated fixed-line speeds as predicted by Ofcom. Please note that these are estimates, and actual service availability and speeds may differ.

Property Location

Show Map

Contact Agent

Contact CPS Omagh

Contact CPS Omagh

Request More Information
Requesting Info about...
Ne Of 43 Rakeeran Road, Dromore, Omagh, BT78 3HN Ne Of 43 Rakeeran Road, Dromore, Omagh, BT78 3HN

By registering your interest, you acknowledge our Privacy Policy