26-28 Bridge Street
Omagh, BT78 1BX
- Status For Rent
- Property Type Commercial
Key Features & Description
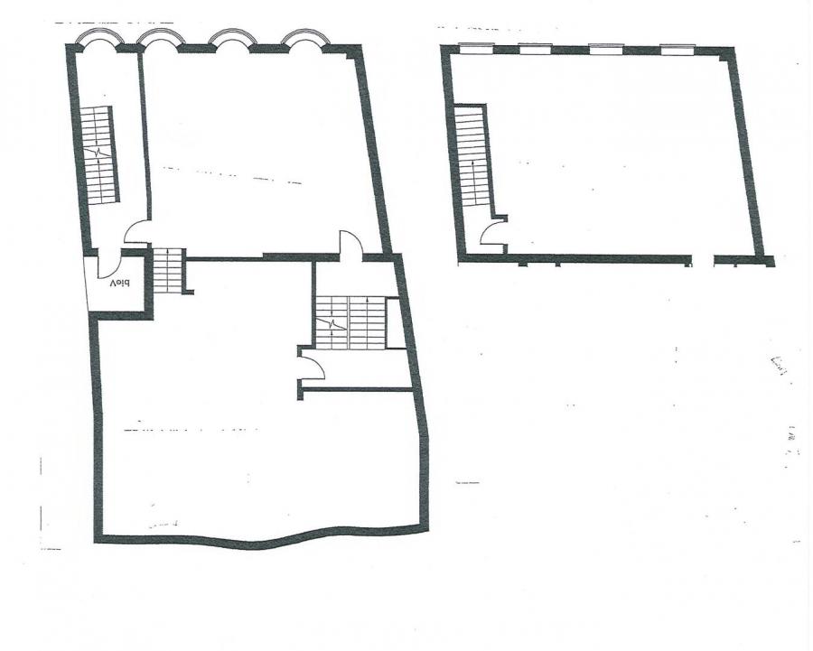
A unique opportunity to lease a prominent 3 storey retail/office and Public Bar on Bridge Street, Omagh. This modern retail/office unit extends to c. 310sq m/3300 sq ft, over ground, first and second floors (ground and first floor split level) with Public Bar in the basement. Bridge Street benefits from a high pedestrian and vehicular flow with nearby carparks. Viewing strictly through agent.
The property was previously used for a mix of retail and office and Public Bar. Ground and first floors are currently fitted out for clothes retail use but may be suitable for other retail or business use subject to any required statutory planning approvals.
Public Bar is accessed from side.
Both first and second floors have internal access and separate external access form Bridge Street.
Ground floor:
Floor area 1:- 7.8m x 6.1m (25.5ft x 20.01ft), laminate flooring, slot walling
Floor area 2:- 8.4m x 7.5m (27.55ft x 24.60ft), laminate flooring, slot walling
Office:- 2.05m x 1.64m (6.72ft x 5.4ft) carpet flooring
Store 1 (former kitchen):- 4.9m x 4.24m (16.07ft x 13.91ft), shelved, tiled walls
Store 2 (former kitchen):- 3.3m x 1.86m (10.82ft x 6.10ft), shelved, tiled walls
First floor:
Floor area 1:- 7.0m x 6.2m (22.96ft x 20.34ft), laminate flooring
Floor area 2:- 8.2m x 7.44m (26.90ft x 24.40ft), carpet flooring
Gents W.C.:- 3.46m x 2.18m (11.35ft x 7.15ft), fully fitted
Ladies W.C.:- 2.94m x 2.43m (9.64ft x 7.97ft), fully fitted
Store:- 1.7m x 1.07m (5.57ft x 3.51ft), shelved
Second floor:
Office 1:- 4.6m x 3.1m (15.09ft x 10.17ft) carpet flooring
Office 2:- 6.08m x 3.2m (19.94ft x 10.49ft) carpet flooring
Store 1:- 4.9m x 3.41m (16.27ft x 11.18ft), carpet flooring
Basement/Cellar Bar
Bar: 30'05" x 21'05"
Fully fitted traditional bar with open fireplace & tile flooring
Gents WC: 14'04" x 6'04"
Fully fitted
Ladies WC: 10'01" x 6'02"
Fully fitted
Store 1: 14'04" x 6'02"
Store 2: 7'02" x 5'07"
External Smoking Area
N.B.
Any photographs displayed or attached to brochures may have been taken with a wide angled lens. McLernon Estate Agents & Valuers have not tested any equipment, apparatus, fittings or services and cannot verify that these are in working order.
VALUATIONS
Should you be considering the sale of your own property we would be pleased to arrange through our office a Free Valuation and advice on selling without obligation.
Contact: To arrange a viewing or for further information contact McLernon Estate Agents on 028 8224 2772 or visit www.mclernonestateagents.com
Property Location
Contact Agent
Contact McLernon Estate Agents
By registering your interest, you acknowledge our Privacy Policy