3 Bed Semi-Detached House
66 Galwally Park
Ormeau, Belfast, BT8 6AH
offers around
£320,000
Key Features & Description
Extended Semi Detached Family Home
Lounge with feature bay window
Open plan living room to dining area
Kitchen with range of fitted units
White bathroom suite
uPVC double glazed windows and external doors
Oil fired central heating
Driveway for off street parking
Detached garage with storage area
Enclosed patio area and lawned garden to rear
Popular cul-de-sac location
Description
This semi-detached family home, which benefits from a single-storey rear extension, is located in a quiet cul-de-sac within this highly sought after residential area. It is within walking distance of Forestside Shopping Centre and offers easy access to the vibrant cafes and restaurants of the Ormeau Road. Residents can also enjoy the nearby open green spaces and leisure facilities of Cherryvale and Ormeau Parks. The property benefits from excellent public transport links to the city centre and lies within the catchment area of several leading primary and post-primary schools.
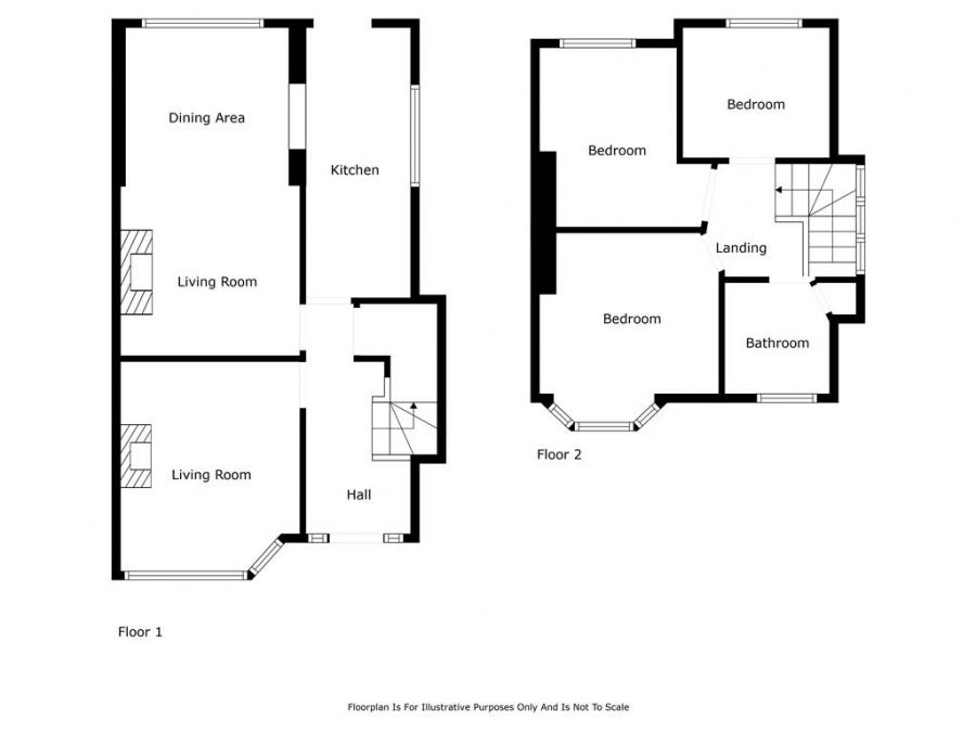
The ground floor accommodation comprises lounge, extended living room with dining area and fitted kitchen, whilst on the first floor there are three bedrooms and contemporary bathroom.
In addition the property benefits from oil fired central heating, double glazing throughout, oil fired central heating and lawned garden to the front and enclosed patio area and garden to the rear.
This semi-detached family home, which benefits from a single-storey rear extension, is located in a quiet cul-de-sac within this highly sought after residential area. It is within walking distance of Forestside Shopping Centre and offers easy access to the vibrant cafes and restaurants of the Ormeau Road. Residents can also enjoy the nearby open green spaces and leisure facilities of Cherryvale and Ormeau Parks. The property benefits from excellent public transport links to the city centre and lies within the catchment area of several leading primary and post-primary schools.
The ground floor accommodation comprises lounge, extended living room with dining area and fitted kitchen, whilst on the first floor there are three bedrooms and contemporary bathroom.
In addition the property benefits from oil fired central heating, double glazing throughout, oil fired central heating and lawned garden to the front and enclosed patio area and garden to the rear.
Rooms
DETACHED GARAGE: 9' 7" X 20' 4" (2.92m X 6.20m)
Up & over door, light and power, inspection pit and storage below.
Driveway to detached garage.
Front garden laid in lawn with mature shrub beds and trees.
Enclosed patio area and lawned garden to rear.
BEDROOM (3): 7' 3" X 7' 7" (2.21m X 2.31m)
Laminate wood flooring, single panel radiator, acces to roofspace.
BEDROOM (2): 8' 7" X 10' 4" (2.61m X 3.15m)
Laminate wood flooring and single panel radiator.
BEDROOM (1): 9' 5" X 10' 5" (2.86m X 3.17m)
Bay window, laminate wood flooring and single panel radiator.
BATHROOM: 5' 6" X 6' 2" (1.67m X 1.88m)
White suite comprising, panel bath with electric shower, pedestal wash hand basin and low flush wc. Hot press, tiled walls and single panel radiator.
LANDING:
Feature stained glass window, single panel radiator.
KITCHEN: 5' 8" X 16' 7" (1.73m X 5.06m)
Range of high and low level units with complementary work surfaces with inset single drainer sink unit and mixer taps, plumbed for washing machine, ceranic hob with extractor canopy above, built in oven, part tiled walls and double panel radiator.
LIVING ROOM: 9' 7" X 22' 4" (2.93m X 6.82m)
Laminate wood flooring, fire surround, open plan to dining area, double and single panel radiators.
LOUNGE: 10' 2" X 11' 4" (3.11m X 3.46m)
Into bay window, laminate wood flooring, fire surround, 2 double panel radiators.
ENTRANCE HALL:
uPVC double glazed entrance door, laminate wood flooring, understair storage, 2 single panel radiators.
Broadband Speed Availability
Potential Speeds for 66 Galwally Park
Max Download
1800
Mbps
Max Upload
220
MbpsThe speeds indicated represent the maximum estimated fixed-line speeds as predicted by Ofcom. Please note that these are estimates, and actual service availability and speeds may differ.
Property Location
Mortgage Calculator
Directions
.
Contact Agent
Contact McQuoids
Request More Information
Requesting Info about...
66 Galwally Park, Ormeau, Belfast, BT8 6AH
By registering your interest, you acknowledge our Privacy Policy
By registering your interest, you acknowledge our Privacy Policy