Contact Agent
Contact Michael Chandler Estate Agents
2 Bed Terrace House
29 Kimberley Street
Ormeau, Belfast, BT7 3DY
asking price
£210,000
Key Features & Description
Description
This charming two bedroom mid-terrace property located just off the bustling Ormeau Road. Offering spacious living accommodation combined with a convenient location, this home has a lot to offer for the lucky new buyer!
The property comprises an eye catching hallway benefitting from lovely features including corbels and cornicing and feature tiling that leads you into the open plan living & dining room with a bay window and a feature fireplace, the modern kitchen benefits from built in appliances, a combination of high and low units and plumbed for white goods. Upstairs offers two well proportioned double bedrooms and a large contemporary bathroom complete with a modern four piece suite.
The low maintenance front garden is laid in paving stones whilst the fully enclosed rear yard offers an excellent space to rewind after a busy day with its raised decking area.
Kimberley Street is a short walk away from the bustling Ormeau Road and benefits from a range of amenities including Ormeau Park, Ormeau golf club, bars, cafes and restaurants and offers easy access to excellent local transport to and from Belfast City Centre. The property also sits within the catchment to a wide range of leading primary and secondary schools in the area.
Your Next Move...
Thinking of selling, it would be a pleasure to offer you a FREE VALUATION of your property.
To arrange a viewing or for further information contact Michael Chandler Estate Agents on 02890 450 550 or email property@michael-chandler.co.uk
This charming two bedroom mid-terrace property located just off the bustling Ormeau Road. Offering spacious living accommodation combined with a convenient location, this home has a lot to offer for the lucky new buyer!
The property comprises an eye catching hallway benefitting from lovely features including corbels and cornicing and feature tiling that leads you into the open plan living & dining room with a bay window and a feature fireplace, the modern kitchen benefits from built in appliances, a combination of high and low units and plumbed for white goods. Upstairs offers two well proportioned double bedrooms and a large contemporary bathroom complete with a modern four piece suite.
The low maintenance front garden is laid in paving stones whilst the fully enclosed rear yard offers an excellent space to rewind after a busy day with its raised decking area.
Kimberley Street is a short walk away from the bustling Ormeau Road and benefits from a range of amenities including Ormeau Park, Ormeau golf club, bars, cafes and restaurants and offers easy access to excellent local transport to and from Belfast City Centre. The property also sits within the catchment to a wide range of leading primary and secondary schools in the area.
Your Next Move...
Thinking of selling, it would be a pleasure to offer you a FREE VALUATION of your property.
To arrange a viewing or for further information contact Michael Chandler Estate Agents on 02890 450 550 or email property@michael-chandler.co.uk
Rooms
Porch 3'6 X 3'3 (1.07m X 0.99m)
Hallway 9'9 X 3'3 (2.97m X 0.99m)
Living / Dining Room 24'7 X 9'0 (7.49m X 2.74m)
Kitchen 19'9 X 5'10 (6.02m X 1.78m)
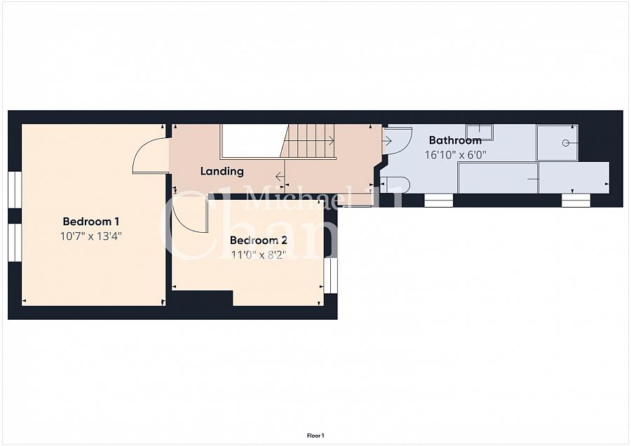
Landing
Bedroom 1 10'7 X 13'4 (3.23m X 4.06m)
Bedroom 2 11'0 X 8'2 (3.35m X 2.49m)
Bathroom 16'10 X 6'0 (5.13m X 1.83m)
Michael Chandler Estate Agents have endeavoured to prepare these sales particulars as accurately and reliably as possible for the guidance of intending purchasers or lessees. These particulars are given for general guidance only and do not constitute any part of an offer or contract. The seller and agents do not give any warranty in relation to the property/ site. We would recommend that all information contained in this brochure is verified by yourself or your professional advisors. Services, fittings and equipment referred to in the sales details have not been tested and no warranty is given to their condition. All measurements contained within this brochure are approximate. Site sizes are approximate and have not been verified.
Virtual Tour
Broadband Speed Availability
Potential Speeds for 29 Kimberley Street
Max Download
1800
Mbps
Max Upload
220
MbpsThe speeds indicated represent the maximum estimated fixed-line speeds as predicted by Ofcom. Please note that these are estimates, and actual service availability and speeds may differ.
Property Location
Mortgage Calculator
Contact Agent
Contact Michael Chandler Estate Agents
Request More Information
Requesting Info about...
29 Kimberley Street, Ormeau, Belfast, BT7 3DY
By registering your interest, you acknowledge our Privacy Policy
By registering your interest, you acknowledge our Privacy Policy