Site
Pair Of Building Sites
Blackisland Road, Portadown, BT62 1NH
fixed price
£99,950
- Status For Sale
- Property Type Site
-
Stamp Duty
Higher amount applies when purchasing as buy to let or as an additional property£0 / £4,998*
Key Features & Description
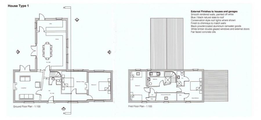
Planning for traditionally inspired detached family homes with garage
Excellent location within easy reach of M1
Desirable two storey properties approx 2000 sq ft
Generous plot sizes - total site area circa 1.7 acres
Description
This is a wonderful opportunity to acquire two building sites, each with the benefit of plans for a c.2,000sqft detached dwelling. The sites are situated on a prime rural location, a short drive from Portadown, Armagh and Dungannon and approximately 1.5 miles from Junction 13 of the M1 motorway.
Set well back from the country road, the sites enjoy fine views over the surrounding countryside whilst the proposed two storey homes have been designed to offer appealing external elevations, beautifully proportioned family accommodation and a stylish internal layout taking full advantage of their delightful position.
Property Location
Mortgage Calculator
Contact Agent
Contact Joyce Clarke
Request More Information
Requesting Info about...
Pair Of Building Sites, Blackisland Road, Portadown, BT62 1NH
By registering your interest, you acknowledge our Privacy Policy
By registering your interest, you acknowledge our Privacy Policy