Land
10 Ardminnan Road
Portaferry, BT22 1QH
from
£149,950
- Status For Sale
- Property Type Land
-
Stamp Duty
Higher amount applies when purchasing as buy to let or as an additional property£499 / £7,997*
Description
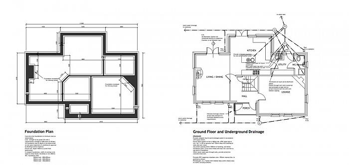
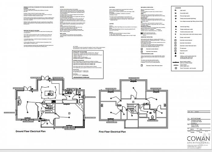
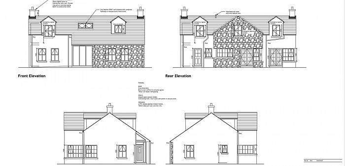
Situated in a beautiful semi-rural, yet convenient location, with full planning permission granted for a three/ four-bedroom detached family home and with stunning views of the surrounding countryside this is a great opportunity to purchase a prime site with foundations already in for the construction of a detached property extending to approx. 1350 sq ft. with all services and sub floor laid. The current plans include downstairs - kitchen with utility room, separate lounge and second reception/dining room, downstairs shower room and three /possible fourth bedroom or study on the first floor and family bathroom.
Broadband Speed Availability
Potential Speeds for 10 Ardminnan Road
Max Download
1000
Mbps
Max Upload
1000
MbpsThe speeds indicated represent the maximum estimated fixed-line speeds as predicted by Ofcom. Please note that these are estimates, and actual service availability and speeds may differ.
Property Location
Mortgage Calculator
Contact Agent
Contact Carolyn Edgar Homes
Request More Information
Requesting Info about...
10 Ardminnan Road, Portaferry, BT22 1QH
By registering your interest, you acknowledge our Privacy Policy
By registering your interest, you acknowledge our Privacy Policy