Contact Agent

Contact JK Estate Agents

Contact JK Estate Agents

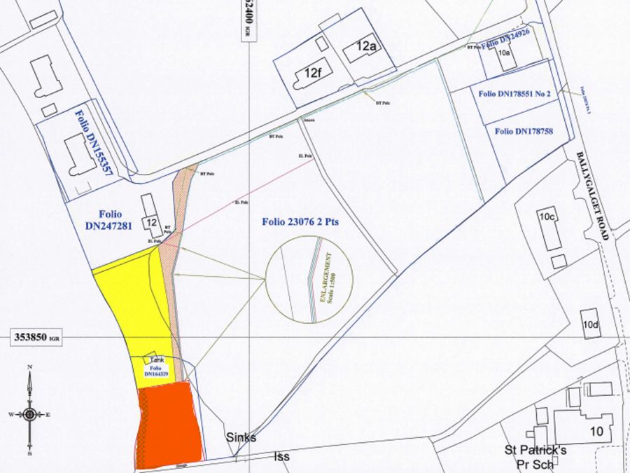
Land (Single Dwelling)

100m South of, 12 Ballygalget Road

Portaferry, BT22 1NE

offers around £85,000
  • Status For Sale
  • Property Type Land (Single Dwelling)
  • Stamp Duty
    Higher amount applies when purchasing as buy to let or as an additional property
    £0 / £4,250*
  • Typical Mortgage
    Click price to use our mortgage calculator

Key Features

Approached by a concrete laneway (Access road to site is in place)
Electricity and mains water close to site.
Foundations in place.
Convenient to local schools and neighbouring villages.
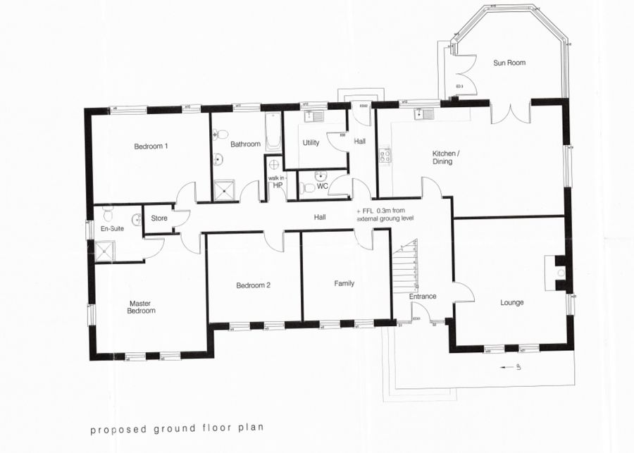
Three Reception; Kitchen / Dining; Utility Room, Three Bedrooms (Master en suite Shower Room), Bathroom.
The site has been granted for Detached Dwelling extending to c. 2100 sq ft offering excellent accommodation.
Delightfully located of the main Ballygalget Road this building site benefits from peace and tranquility.

Property Location

Show Map

Mortgage Calculator

Disclaimer: The following calculations act as a guide only, and are based on a typical repayment mortgage model. Financial decisions should not be made based on these calculations and accuracy is not guaranteed. Always seek professional advice before making any financial decisions.

Contact Agent

Contact JK Estate Agents

Contact JK Estate Agents

Request More Information
Requesting Info about...
100m South of, 12 Ballygalget Road, Portaferry, BT22 1NE 100m South of, 12 Ballygalget Road, Portaferry, BT22 1NE

By registering your interest, you acknowledge our Privacy Policy