3 Bed End Terrace
8 Mary Street
Rostrevor, Newry, BT34 3AY
offers over
£495,000
Key Features & Description
Description
We are delighted to offer for sale this attractive listed period end terrace beautifully positioned in the heart of the popular and much sought after village of Rostrevor
Whether as a residential home or some form of onward commercial opportunity the accommodation is deceptively spacious throughout over three floors with three bedrooms and two large reception rooms. To the rear there is parking for 4 cars
The location is exceptional on the shores of Carlingford Lough with a vast array of local amenities, high quality restaurants and cafes on your doorstep.
The nearby city of Newry provides additional amenities and excellent schooling. Belfast is circa 1 hr away with Dublin 1 hr 15 mins
Viewing of this magnificent property is by private appointment through our Belfast Office on 02890 668888
We are delighted to offer for sale this attractive listed period end terrace beautifully positioned in the heart of the popular and much sought after village of Rostrevor
Whether as a residential home or some form of onward commercial opportunity the accommodation is deceptively spacious throughout over three floors with three bedrooms and two large reception rooms. To the rear there is parking for 4 cars
The location is exceptional on the shores of Carlingford Lough with a vast array of local amenities, high quality restaurants and cafes on your doorstep.
The nearby city of Newry provides additional amenities and excellent schooling. Belfast is circa 1 hr away with Dublin 1 hr 15 mins
Viewing of this magnificent property is by private appointment through our Belfast Office on 02890 668888
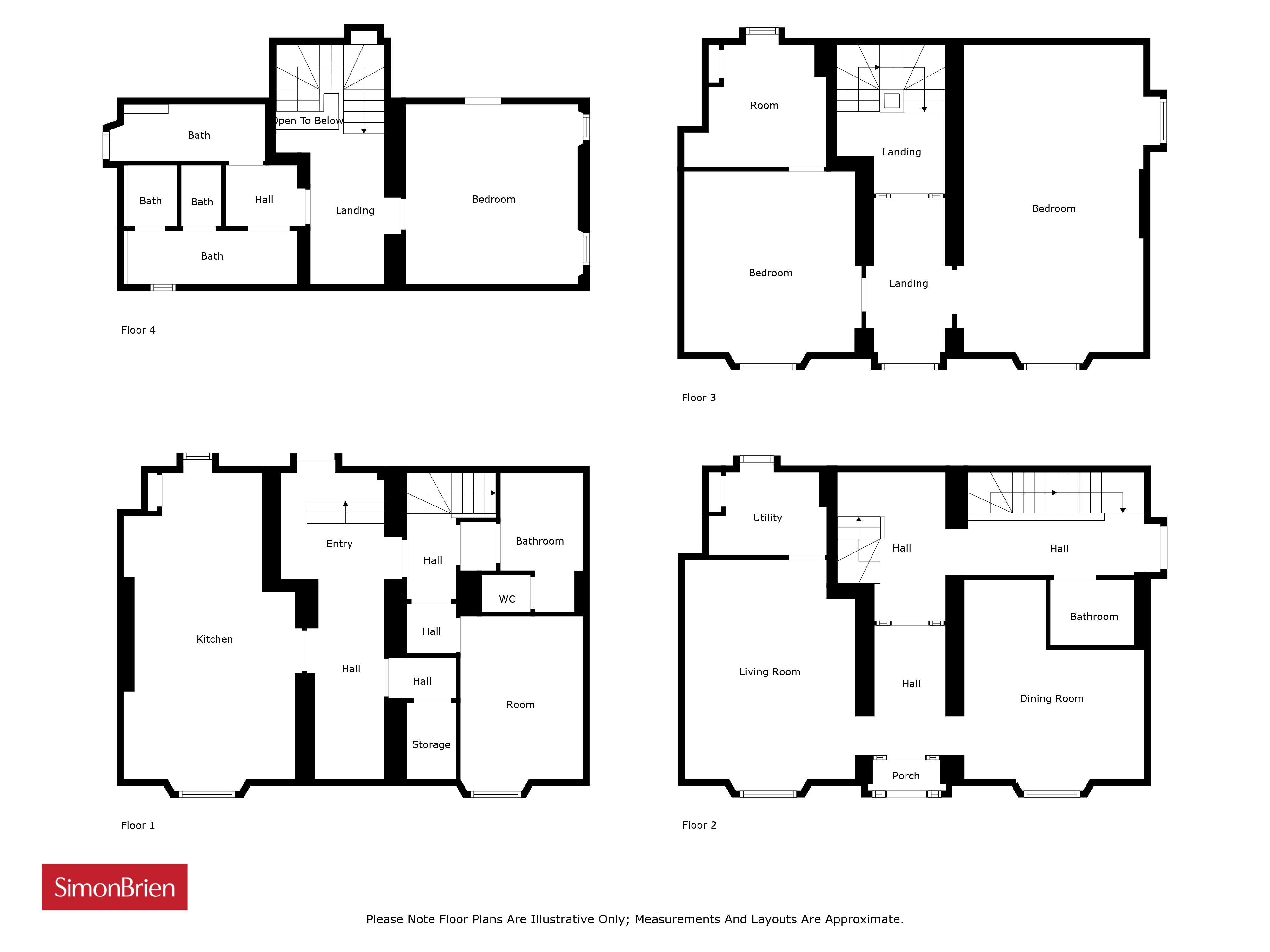
Rooms
Ground Floor
Entrance Hall
Kitchen 13'2" X 24'6" (4.01m X 7.46m)
Storage Room 9'5" X 13'5" (2.86m X 4.10m)
Bathroom 6'4" X 10'8" (1.93m X 3.25m)
First Floor
Living Room 14'5" X 17'9" (4.40m X 5.40m)
Dining Room 15'2" X 16'2" (4.63m X 4.94m)
Utility Room 9'1" X 6'5" (2.76m X 1.95m)
Bathroom 6'6" X 5'0" (1.97m X 1.53m)
Second Floor
Bedroom 1 15'1" X 24'5" (4.59m X 7.45m)
Bedroom 2 13'7" X 14'9" (4.15m X 4.50m)
Storage Room 10'11" X 9'5" (3.33m X 2.86m)
Third Floor
Bedroom 3 13'7" X 13'9" (4.14m X 4.20m)
Bathroom 13'0" X 13'1" (3.95m X 3.99m)
Broadband Speed Availability
Potential Speeds for 8 Mary Street
Max Download
10000
Mbps
Max Upload
10000
MbpsThe speeds indicated represent the maximum estimated fixed-line speeds as predicted by Ofcom. Please note that these are estimates, and actual service availability and speeds may differ.
Property Location
Mortgage Calculator
Contact Agent
Contact Simon Brien (South Belfast)
Request More Information
Requesting Info about...
8 Mary Street, Rostrevor, Newry, BT34 3AY
By registering your interest, you acknowledge our Privacy Policy
By registering your interest, you acknowledge our Privacy Policy