Contact Agent

Contact Templeton Robinson (Ballyhackamore)

Contact Templeton Robinson (Ballyhackamore)

3 Bed Semi-Detached House

26 Summerhill Park

Stormont, Belfast, BT5 7HE

offers over £210,000
  • Status For Sale
  • Property Type Semi-Detached
  • Bedrooms 3
  • Receptions 2
  • Heating Oil
  • EPC Rating F25 / C76
  • Stamp Duty
    Higher amount applies when purchasing as buy to let or as an additional property
    £1,700 / £12,200*
  • Typical Mortgage
    Click price to use our mortgage calculator
EPC Rating

Key Features & Description

No onward chain
Easy access to transport links to Belfast City Centre
Excellent local amenities, parks and schools all close by
South facing rear garden
Large detached garage
Main family bathroom on first floor
Kitchen with access to rear
Additional reception room
Living room to front with feature fireplace
Three well-proportioned bedrooms
Walking distance to Stormont grounds
Semi-detached home in popular residential location
Description
This charming semi-detached home has been well maintained over many years by its current owner, it has been priced to allow for a buyer to undertake some improvements.

The accommodation comprises; a spacious living room to front, additional reception room and a kitchen occupy the ground floor. A contemporary bathroom is conveniently located to the first floor where there are three good sized bedrooms.

Externally the property benefits from a large detached garage, south-facing rear garden and gardens to front with off-street parking.

Close to the beautiful grounds of Stormont Estate; local shops, cafés and the Belfast Glider are within a short stroll and Ballyhackamore Village is also close by.

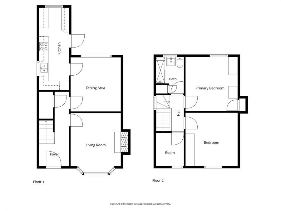
Rooms

REAR GARDEN: South facing garden laid in lawn. Additional brick pavior patio area. Surrounding mature shrubbery. Housing for oil boiler. uPVC oil tank, outside light and tap.
GARAGE: Power and light. Roller door, additional side door to rear.
FRONT GARDEN: Laid in lawn, brick pavior driveway parking. Access to side and rear.
BATHROOM: White suite comprising dual flush wc, vanity unit with ceramic sink and mixer tap, bluetooth wall mounted mirror. Chrome heated towel rail. Walk-in shower cubicle with electric rain head shower and glass screen, fully tiled walls, tiled floor, spotlights. Hotpress cupboard with shelving.
BEDROOM (3): 7' 1" X 6' 0" (2.16m X 1.83m)
BEDROOM (2): 11' 5" X 11' 3" (3.48m X 3.43m) Outlook to rear. Cornice ceiling. Built-in storage cupboard.
BEDROOM (1): 11' 8" X 11' 3" (3.55m X 3.42m) Outlook to front. Built-in robes with double mirror fronted sliding doors.
LANDING: Access to roofspace.
KITCHEN: 17' 9" X 6' 5" (5.40m X 1.95m) Range of high and low level wooden units, 1.5 stainless steel sink unit with mixer tap, splashback, built-in double oven, four ring electric hob, extractor above. Space for fridge/freezer, plumbed for washing machine, tongue and groove wooden ceiling with spotlights. Vinyl flooring. uPVC door to rear.
DINING ROOM: 11' 8" X 10' 10" (3.55m X 3.30m) Wood effect laminate flooring. Cornice ceiling, ceiling rose.
LIVING ROOM: 12' 10" X 10' 10" (3.90m X 3.30m) (into bay). Laminate wood effect flooring, cornice ceiling, ceiling rose, feature marble fireplace with gas fire.
ENTRANCE HALL: Wood effect laminate flooring, cornice ceiling. Under stairs storage cupboard.
Composite front door to:

Broadband Speed Availability

Ultrafast

Potential Speeds for 26 Summerhill Park

Max Download
1800
Mbps
Max Upload
220
Mbps
The speeds indicated represent the maximum estimated fixed-line speeds as predicted by Ofcom. Please note that these are estimates, and actual service availability and speeds may differ.

Property Location

Show Map

Mortgage Calculator

Disclaimer: The following calculations act as a guide only, and are based on a typical repayment mortgage model. Financial decisions should not be made based on these calculations and accuracy is not guaranteed. Always seek professional advice before making any financial decisions.

Directions

Travelling from Belfast along the Upper Newtownards Road continue just past the Stormont Hotel and turn right into Summerhill Avenue. Summerhill Park is on the right and No. 26 is on the left hand side.

Contact Agent

Contact Templeton Robinson (Ballyhackamore)

Contact Templeton Robinson (Ballyhackamore)

Request More Information
Requesting Info about...
26 Summerhill Park, Stormont, Belfast, BT5 7HE 26 Summerhill Park, Stormont, Belfast, BT5 7HE

By registering your interest, you acknowledge our Privacy Policy