Site
Former Cabin Hill School, 562 Upper Newtownards Road
Stormont, Belfast, BT4 3LD
Price on Application
- Status For Sale
- Property Type Site
- Heating None
Key Features & Description
Contact Aaron Russell on 07787228626 for further details
Price upon Application
Storm and Foul Connections secure
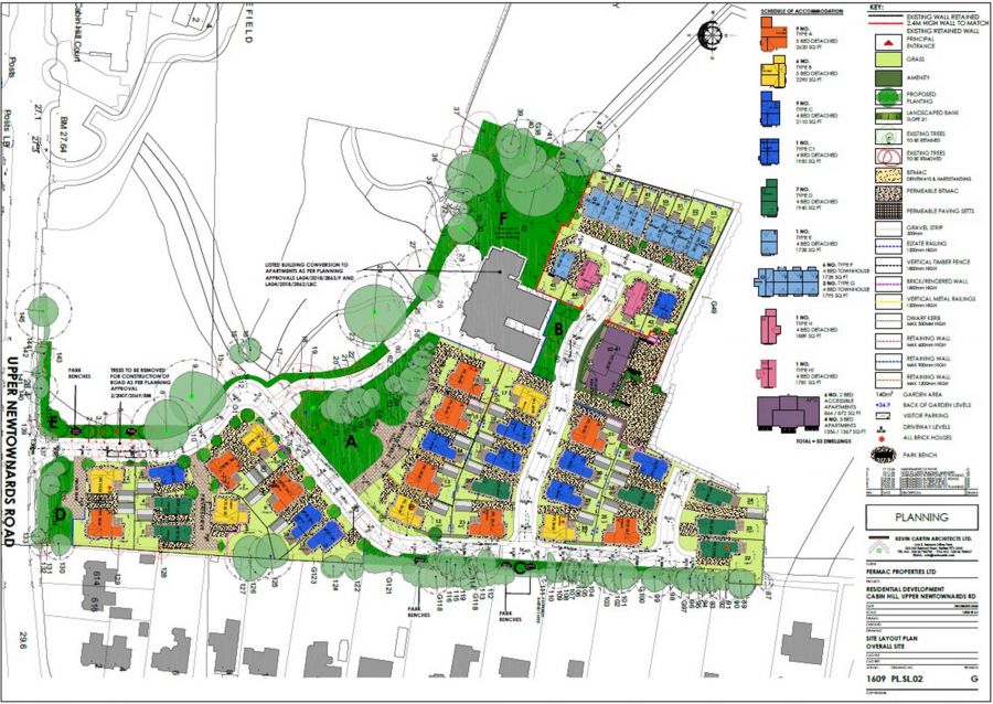
Planning secured under Reference: LA04/2018/2863/F for 12no. Apartments
Existing building extends to c.18,000 sq ft
Site area extends to 1.0 acre
Prime residential East Belfast suburb
Description
LOCATION
Cabin Hill enjoys a prime location in the Belmont suburb of East Belfast, just off the Upper Newtownards Road and close to its junction with Castlehill Road. The location is undoubtedly one of Belfast"s most desirable and most rapidly developing suburbs.
HISTORY
Occupation of the site commenced in the late 18th Century, with the current Manor House constructed in the 1860"s and later extended in the early 1900"s. Most famous for being temporarily the seat of the very first Northern Irish Parliament in the early 1920"s it then became Cabin Hill School, which operated for approximately 80 years until its closure in the early 2000"s
SURROUNDING LAND USES
Surrounding land uses are primarily low-to-medium density housing with Campbell College located to the rear. Some of the country"s most prestigious and successful schools are in close proximity to include Campbell College, Strathearn Girls School, Our Lady and St Patrick"s College and Bloomfield Collegiate Girls Grammar school. Other notable landmarks in the immediate area include; the prestigious Parliament Buildings atStormont, Stormont Castle and its vast grounds at Stormont Estate, Civil Service Playing Fields, Ulster Hospital and the Stormont Hotel
AMENITIES
There is a wealth of amenities in close proximity. Neighbourhood shopping and a vast range of stylish eateries, bars and boutiques are nearby at the popular Ballyhackamore and Belmont villages.
COMMUTER LINKS
The area benefits from excellent commuter routes into Belfast City Centre to include the Glider route on Upper Newtownards Road. In addition, the site is within close proximity to Belfast City Airport, being only a 5 minute drive away (2.8 miles).
DESCRIPTION
The former Cabin Hill School is a Grade B2 listed building, providing accommodation over ground and two upper floors, set on a mature site of c. 1.0 acre.
In addition to the secured planning consent for conversion to 12no. Residential apartments, the property lends itself to a range of potential uses to include leisure, daycare and healthcare, all subject to obtaining the necessary statutory planning consents.
The property in sale will be accessed off the Upper Newtownards Road via a right of way as illustrated on the enclosed plan.
PLANNING STATUS
Full planning permission approved (Ref: LA04/2018/2863/F) for 12 no. high end apartments ranging in size from 1,260 sq ft to 1,874 sq ft.
LOCATION
Cabin Hill enjoys a prime location in the Belmont suburb of East Belfast, just off the Upper Newtownards Road and close to its junction with Castlehill Road. The location is undoubtedly one of Belfast"s most desirable and most rapidly developing suburbs.
HISTORY
Occupation of the site commenced in the late 18th Century, with the current Manor House constructed in the 1860"s and later extended in the early 1900"s. Most famous for being temporarily the seat of the very first Northern Irish Parliament in the early 1920"s it then became Cabin Hill School, which operated for approximately 80 years until its closure in the early 2000"s
SURROUNDING LAND USES
Surrounding land uses are primarily low-to-medium density housing with Campbell College located to the rear. Some of the country"s most prestigious and successful schools are in close proximity to include Campbell College, Strathearn Girls School, Our Lady and St Patrick"s College and Bloomfield Collegiate Girls Grammar school. Other notable landmarks in the immediate area include; the prestigious Parliament Buildings atStormont, Stormont Castle and its vast grounds at Stormont Estate, Civil Service Playing Fields, Ulster Hospital and the Stormont Hotel
AMENITIES
There is a wealth of amenities in close proximity. Neighbourhood shopping and a vast range of stylish eateries, bars and boutiques are nearby at the popular Ballyhackamore and Belmont villages.
COMMUTER LINKS
The area benefits from excellent commuter routes into Belfast City Centre to include the Glider route on Upper Newtownards Road. In addition, the site is within close proximity to Belfast City Airport, being only a 5 minute drive away (2.8 miles).
DESCRIPTION
The former Cabin Hill School is a Grade B2 listed building, providing accommodation over ground and two upper floors, set on a mature site of c. 1.0 acre.
In addition to the secured planning consent for conversion to 12no. Residential apartments, the property lends itself to a range of potential uses to include leisure, daycare and healthcare, all subject to obtaining the necessary statutory planning consents.
The property in sale will be accessed off the Upper Newtownards Road via a right of way as illustrated on the enclosed plan.
PLANNING STATUS
Full planning permission approved (Ref: LA04/2018/2863/F) for 12 no. high end apartments ranging in size from 1,260 sq ft to 1,874 sq ft.
Property Location
Directions
Cabin Hill enjoys a prime location in the Belmont suburb of East Belfast, just off the Upper Newtownards Road and close to its junction with Castlehill Road. The location is undoubtedly one of Belfast"s most desirable and most rapidly developing suburbs.
Contact Agent
Contact Colliers New Homes
Request More Information
Requesting Info about...
Former Cabin Hill School, 562 Upper Newtownards Road, Stormont, Belfast, BT4 3LD
By registering your interest, you acknowledge our Privacy Policy
By registering your interest, you acknowledge our Privacy Policy