Contact Agent
Contact Templeton Robinson (Lisburn Road)
3 Bed Semi-Detached House
58 Sharman Road
Stranmillis, Belfast, BT9 5FX
offers over
£315,000
Key Features & Description
Gas heating and Double Glazed Windows
Modern Bathroom
Three Well Proportioned Bedrooms
Open Plan Modern Fitted kitchen to Casual Living & Dining Room with Access to Rear Gardens
Lounge with Wood Floor and original Painted Fireplace
Entrance Hall with Under Stairs Storage
Attractive Red Brick Semi-detached Home Walking Distance of Stranmillis Primary School and Village
Ideal for an Owner Occupier or Investor
Popular Location Close to Many Local Amenitie; Schools, Cafes, Bars, The Tow Path, Cutters Wharf and The Boat Club
Entrance Gates to Driveway Parking and Detached Garage
Front Gardens in Lawns with Beds in Bushes, Delightful Rear Landscaped Gardens in Lawns and Beds in Shrubs and Bushes and Boundary Fencing
Description
This attractive semi detached home occupies a superb extremely convenient location in the ever popular Stranmillis residential area with a host of amenities only minutes away including shops, the Lagan towpath and Stranmillis Primary School. It is bright and has a modern but homely feel throughout.
The property offers well presented and balanced accommodation both internally and externally with two reception rooms one open plan to modern fitted kitchen, three first floor bedrooms and good sized rear garden. Overall it is ideally suited to cater for all those modern day living requirements.
Always an extremely sought after residential location this excellent home will have wide ranging appeal including to young professionals and families. Early viewing is highly recommended so as not to miss out.
This attractive semi detached home occupies a superb extremely convenient location in the ever popular Stranmillis residential area with a host of amenities only minutes away including shops, the Lagan towpath and Stranmillis Primary School. It is bright and has a modern but homely feel throughout.
The property offers well presented and balanced accommodation both internally and externally with two reception rooms one open plan to modern fitted kitchen, three first floor bedrooms and good sized rear garden. Overall it is ideally suited to cater for all those modern day living requirements.
Always an extremely sought after residential location this excellent home will have wide ranging appeal including to young professionals and families. Early viewing is highly recommended so as not to miss out.
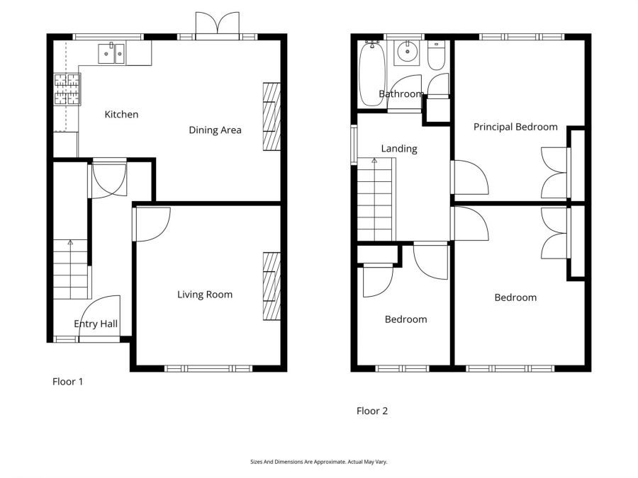
Rooms
Private and enclosed rear gardens in lawns with raised paved sun terrace, wooden fencing and boundary beds in shrubs, trees and bushes.
DETACHED GARAGE: 20' 9" X 9' 4" (6.32m X 2.84m)
(at widest points). Up and over door.
Front garden in lawns with bushes and hedging. Entrance gates to driveway parking and . . .
BATHROOM:
White suite comprising low flush wc, pedestal wash hand basin, panelled bath with shower over and drencher shower head, part tiled walls, airing cupboard, heated towel rail.
BEDROOM (3): 8' 9" X 7' 4" (2.67m X 2.24m)
(at widest points). Built-in wardrobes.
BEDROOM (2): 12' 5" X 10' 4" (3.78m X 3.15m)
(at widest points). Painted floor boards, built-in wardrobes.
BEDROOM (1): 12' 4" X 10' 3" (3.76m X 3.12m)
(at widest points). Sanded and varnished floor boards, built-in wardrobes.
LANDING:
Access to floored roofspace.
MODERN FITTED KITCHEN OPEN PLAN TO DINING ROOM: 17' 11" X 12' 11" (5.46m X 3.94m)
Range of high gloss high and low level units, wooden work surfaces, sink and drainer, integrated oven, four ring gas hob, extractor fan over, space for fridge freezer, plumbed for washing machine, low voltage spotlights, double patio doors to rear, hole in the wall fireplace.
LOUNGE: 12' 5" X 11' 5" (3.78m X 3.48m)
(at widest points). Painted stone fireplace with wooden mantle and slate hearth, sanded and varnished floor boards.
ENTRANCE HALL:
Sanded and varnished floor boards, cloaks cupboard, gas fired boiler.
uPVC front door to . . .
Broadband Speed Availability
Potential Speeds for 58 Sharman Road
Max Download
1800
Mbps
Max Upload
220
MbpsThe speeds indicated represent the maximum estimated fixed-line speeds as predicted by Ofcom. Please note that these are estimates, and actual service availability and speeds may differ.
Property Location
Mortgage Calculator
Directions
Travelling away from the city centre on the Stranmillis Road take third exit at mini roundabout continuing on the Stranmillis Road in the direction of the Malone Road. Sharman Road is then first on the left.
Contact Agent
Contact Templeton Robinson (Lisburn Road)
Request More Information
Requesting Info about...
58 Sharman Road, Stranmillis, Belfast, BT9 5FX
By registering your interest, you acknowledge our Privacy Policy
By registering your interest, you acknowledge our Privacy Policy