Contact Agent

Contact GOC Estate Agents

Contact GOC Estate Agents

6 Bed Apartment

95 University Avenue

Queens Quarter, Belfast, BT7 1GX

offers over £349,950
  • Status For Sale
  • Property Type Apartment
  • Bedrooms 6
  • Receptions 2
  • Heating GFCH
  • EPC Rating C70 / C71 -
  • Stamp Duty
    Higher amount applies when purchasing as buy to let or as an additional property
    £7,498 / £24,995*
  • Typical Mortgage
    Click price to use our mortgage calculator
EPC Rating

Key Features & Description

Superb Student Location Within Walking Distance of Queens University
Gas Fired Central Heating With Separate Boilers and Double Glazed Windows
Secure Yard to Rear
Fantastic Presentation Throughout
Fully Let at £28,560 per annum
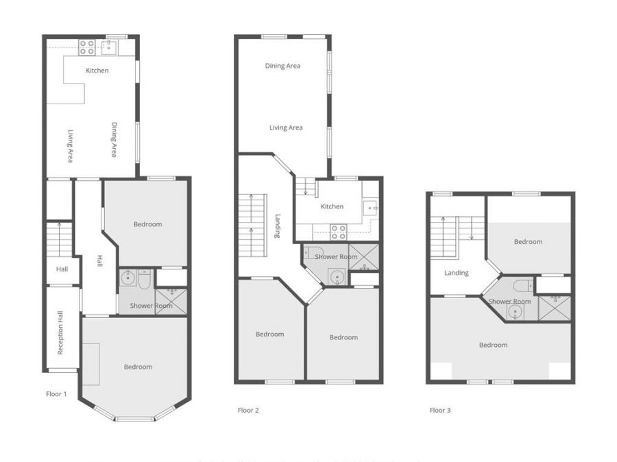
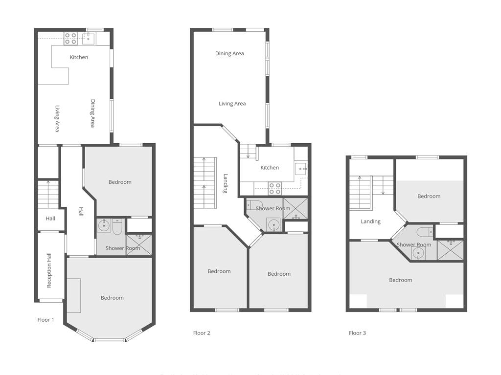
Two Self-Contained Apartments, One Two Bedroom Apartment and One Four Bedroom HMO Apartment
Description
A rare opportunity to obtain a fantastic investment property on University Avenue. University Avenue is a widely popular location with students owing to its proximity to Queens University. Fully let until 2026, the building currently produces a rental income of £28,560 per annum.
Comprising a two bedroom apartment on the ground floor with open-plan living kitchen space, shower room with three piece suite and two double bedrooms. Upstairs, a four bedroom HMO apartment arranged over the first and second floor. Containing four double bedrooms, a lounge, fully equipped kitchen and two spacious shower rooms with three piece suites.
Early viewing is highly recommended.

Rooms

Concreted secure yard to rear. Accessed via fire escape.
SHOWER ROOM: Three piece suite with corner shower with sliding door, wash hand basin, low flush W/C and extractor fan.
BEDROOM (4): 15' 2" X 10' 4" (4.62m X 3.15m) Carpeted flooring.
BEDROOM (3): 9' 0" X 8' 4" (2.74m X 2.54m) Carpeted flooring.
BEDROOM (2): 10' 10" X 7' 4" (3.30m X 2.24m) Carpeted flooring.
BEDROOM (1): 9' 5" X 7' 5" (2.87m X 2.26m) Carpeted, built-in storage.
KITCHEN 10' 3" X 7' 6" (3.12m X 2.29m) Range of high and level units, laminate work-surfaces, stainless steel sink and drainer, oven with ceramic hob, extractor fan, integrated fridge/freezer and linoleum flooring.
LOUNGE: 15' 10" X 10' 6" (4.83m X 3.20m) Laminate flooring, access to fire escape.
SHOWER ROOM: Three piece suite with corner Redring electric shower with sliding door, wash hand basin, low flush W/C and extractor fan. Tiled flooring.
BEDROOM (2): 10' 8" X 10' 6" (3.25m X 3.20m) Bay window. Carpeted flooring.
BEDROOM (1): 9' 0" X 8' 0" (2.74m X 2.44m) Carpeted flooring, built-in storage.
OPEN-PLAN KITCHEN LOUNGE 16' 6" X 10' 2" (5.03m X 3.10m) Open plan kitchen and living space with fire escape access to rear. Range of high and low level units with laminate work-surfaces, stainless steel sink and drainer, oven with ceramic hob and freestanding fridge.
ENTRANCE HALL: Accessed via main door, electricity boxes.

Property Location

Show Map

Mortgage Calculator

Disclaimer: The following calculations act as a guide only, and are based on a typical repayment mortgage model. Financial decisions should not be made based on these calculations and accuracy is not guaranteed. Always seek professional advice before making any financial decisions.

Directions

Turning off Ormeau Road on to University Avenue and the property is circa 300 metres on your left.

Contact Agent

Contact GOC Estate Agents

Contact GOC Estate Agents

Request More Information
Requesting Info about...
95 University Avenue, Queens Quarter, Belfast, BT7 1GX 95 University Avenue, Queens Quarter, Belfast, BT7 1GX

By registering your interest, you acknowledge our Privacy Policy