Contact Agent

Contact Jones Estate Agents

Contact Jones Estate Agents

Site

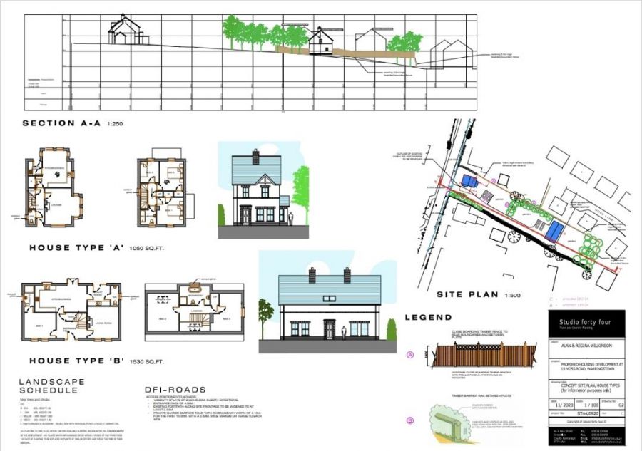
19 Moss Road

Waringstown, BT66 7QY

offers over £150,000
  • Status For Sale
  • Property Type Site
  • Stamp Duty
    Higher amount applies when purchasing as buy to let or as an additional property
    £500 / £8,000*
  • Typical Mortgage
    Click price to use our mortgage calculator

Description

Exceptional Development Opportunity in Waringstown.

Situated on a highly sought-after address in the heart of the charming village of Waringstown, this superb site offers full planning permission for two detached dwellings.

The location combines village living with excellent convenience - close to local shops, schools, and transport links, while being within easy reach of Lurgan, Banbridge, and beyond.

With planning already secured, this represents an ideal opportunity for developers, builders, or those seeking to create bespoke family homes in a desirable residential setting.

Planning Application LA08/2023/1799/O

Broadband Speed Availability

Ultrafast

Potential Speeds for 19 Moss Road

Max Download
1800
Mbps
Max Upload
1000
Mbps
The speeds indicated represent the maximum estimated fixed-line speeds as predicted by Ofcom. Please note that these are estimates, and actual service availability and speeds may differ.

Property Location

Show Map

Mortgage Calculator

Disclaimer: The following calculations act as a guide only, and are based on a typical repayment mortgage model. Financial decisions should not be made based on these calculations and accuracy is not guaranteed. Always seek professional advice before making any financial decisions.

Contact Agent

Contact Jones Estate Agents

Contact Jones Estate Agents

Request More Information
Requesting Info about...
19 Moss Road, Waringstown, BT66 7QY 19 Moss Road, Waringstown, BT66 7QY

By registering your interest, you acknowledge our Privacy Policy