Site
Full Serviced Site at, 22 Carrick Road
Burren, Warrenpoint, BT34 3QU
offers over
£200,000
- Status For Sale
- Property Type Site
-
Stamp Duty
Higher amount applies when purchasing as buy to let or as an additional property£1,500 / £11,500*
Description
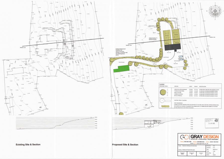
Exceptional 1.6 Acre Site with Full Planning Permission
Nestled in a prime elevated position with stunning, expansive views across Tamnaharry and Burren, this site with full planning permission (LA07/2022/0709/F) offers a rare opportunity to create your dream family home in a private countryside setting. The proposed dwelling has been thoughtfully designed to complement its natural surroundings, with a sleek, contemporary design and eco-friendly finishes, including a grass-covered roof and large expanses of glazing to embrace the breathtaking west-facing aspect.Accessible via a shared laneway from Carrick Road, the site is just minutes from the charming village of Burren and a short drive (4 Miles) to the picturesque seaside town of Warrenpoint. Enjoy the perfect blend of tranquil rural living and proximity to essential community amenities, schools, and excellent transport links.This is an exceptional opportunity for those seeking to design and build a bespoke family home in an idyllic setting, with the best of nature and convenience right at your doorstep.
Terms of Sale:-
The Lands are being offered For Sale by Private Treaty. However, the vendor reserves the right to conclude the sale via auction or "Best and Final" bids at a date and time to be confirmed.The criteria required from interested parties in placing an offer must include:- Confirmation of name and address of proposed purchaser- Confirmation of offer level- Proof of funds from Bank to confirm that adequate funds are available to complete the purchase at offer level- Timescale to complete the purchase post acceptance of offer- Confirmation of solicitor who will represent purchaser- 10% deposit of agreed purchase price shall be payable upon agreement of sale- Further information pack to be provided at this point
Nestled in a prime elevated position with stunning, expansive views across Tamnaharry and Burren, this site with full planning permission (LA07/2022/0709/F) offers a rare opportunity to create your dream family home in a private countryside setting. The proposed dwelling has been thoughtfully designed to complement its natural surroundings, with a sleek, contemporary design and eco-friendly finishes, including a grass-covered roof and large expanses of glazing to embrace the breathtaking west-facing aspect.Accessible via a shared laneway from Carrick Road, the site is just minutes from the charming village of Burren and a short drive (4 Miles) to the picturesque seaside town of Warrenpoint. Enjoy the perfect blend of tranquil rural living and proximity to essential community amenities, schools, and excellent transport links.This is an exceptional opportunity for those seeking to design and build a bespoke family home in an idyllic setting, with the best of nature and convenience right at your doorstep.
Terms of Sale:-
The Lands are being offered For Sale by Private Treaty. However, the vendor reserves the right to conclude the sale via auction or "Best and Final" bids at a date and time to be confirmed.The criteria required from interested parties in placing an offer must include:- Confirmation of name and address of proposed purchaser- Confirmation of offer level- Proof of funds from Bank to confirm that adequate funds are available to complete the purchase at offer level- Timescale to complete the purchase post acceptance of offer- Confirmation of solicitor who will represent purchaser- 10% deposit of agreed purchase price shall be payable upon agreement of sale- Further information pack to be provided at this point
Broadband Speed Availability
Potential Speeds for 22 Carrick Road
Max Download
4
Mbps
Max Upload
1
MbpsThe speeds indicated represent the maximum estimated fixed-line speeds as predicted by Ofcom. Please note that these are estimates, and actual service availability and speeds may differ.
Property Location
Mortgage Calculator
Contact Agent
Contact Simon Brien Bradley (Newry)
Request More Information
Requesting Info about...
Full Serviced Site at, 22 Carrick Road, Burren, Warrenpoint, BT34 3QU
By registering your interest, you acknowledge our Privacy Policy
By registering your interest, you acknowledge our Privacy Policy